EXCLUSIVE
EXCLUSIVE
EXCLUSIVE
EXCLUSIVE
EXCLUSIVE
EXCLUSIVE
+
-
REVERSE
×
CLOSE
Plan 29902RL
Farm-Style House Plan Designed for Rear View Lots with Open Breezeway and a 2-Car Garage
2,295
Heated S.F.
3-5
Beds
3 - 5
Baths
2
Stories
2
Cars
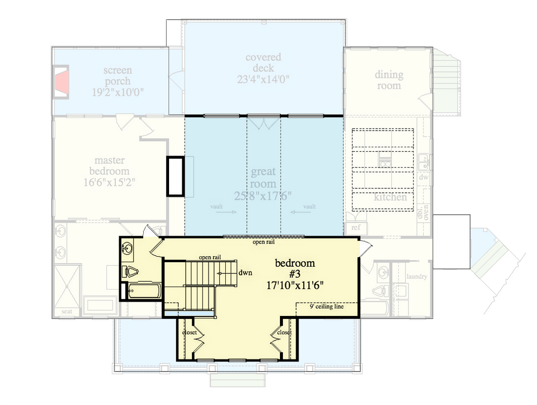
Floor Plan
Main Level
Reverse Floor Plan
2nd Floor
Reverse Floor Plan
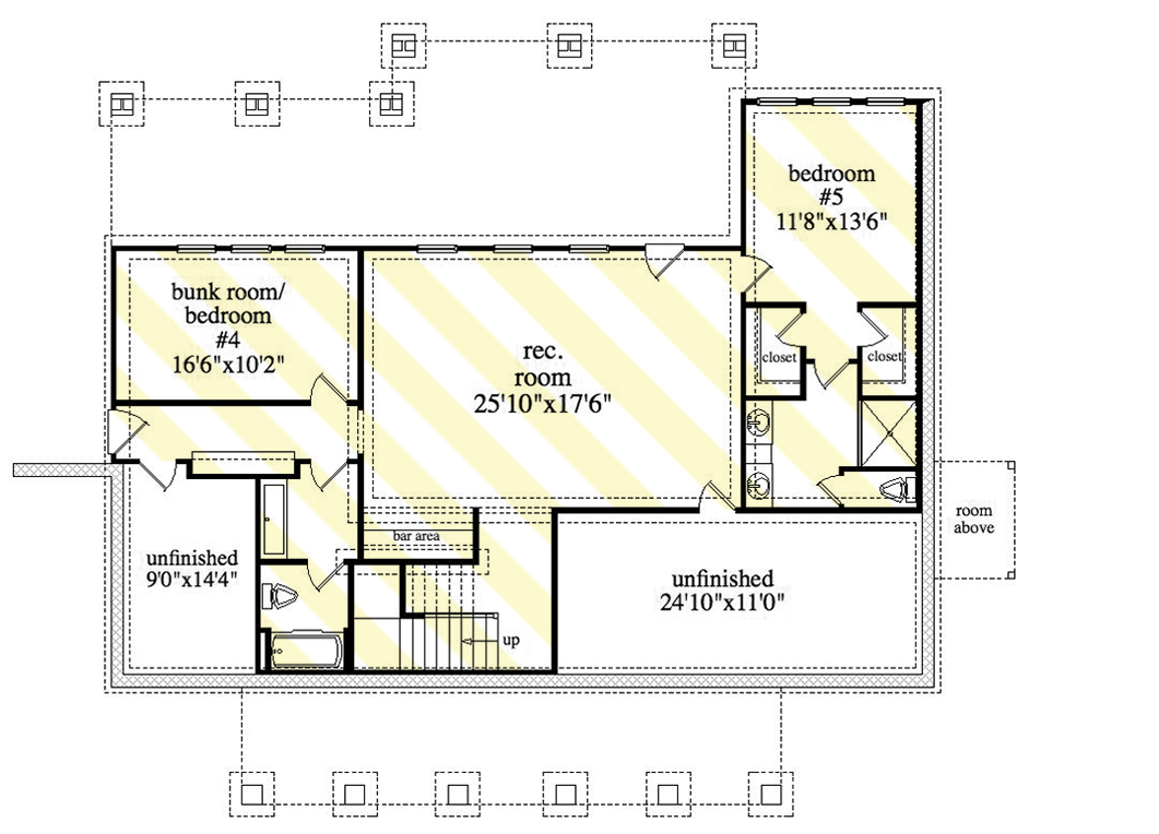
Optionally Finished Lower Level
Reverse Floor Plan
Plan details
Square Footage Breakdown
Total Heated Area:
2,295 sq. ft.
1st Floor:
1,845 sq. ft.
2nd Floor:
450 sq. ft.
Storage:
392 sq. ft.
Screened Porch:
182 sq. ft.
Porch, Front:
235 sq. ft.
Optional Lower Level:
1,335 sq. ft.
Basement Unfinished:
392 sq. ft.
Beds/Baths
Bedrooms:
3, 4, or 5
Full bathrooms:
3, 4, or 5
Foundation Type
Standard Foundations:
Walkout
Optional Foundations:
Basement, Crawl
Exterior Walls
Standard Type(s):
2x4
Optional Type(s):
2x6
Dimensions
Width:
61' 6"
Depth:
52' 0"
Max ridge height:
25' 9"
Garage
Type:
Detached
Area:
525 sq. ft.
Count:
2 Cars
Entry Location:
Side
Ceiling Heights
Floor / Height:
Lower Level / 9' 1"
First Floor / 10' 1"
Second Floor / 9' 1"
Room Details
Ceiling Type
Width
Depth
Height
Great Room
Vaulted
19' 0"
Dining Room
Flat
10' 1"
Screened Porch
Flat
10' 1"
Roof Details
Primary Pitch:
10 on 12
Framing Type:
Stick Or Truss