+
-
REVERSE
×
CLOSE
Plan 270042AF
One-Story Modern Farmhouse Under 1,500 Square Feet with Vaulted Interior
1,458
Heated S.F.
3
Beds
2
Baths
1
Stories
2
Cars
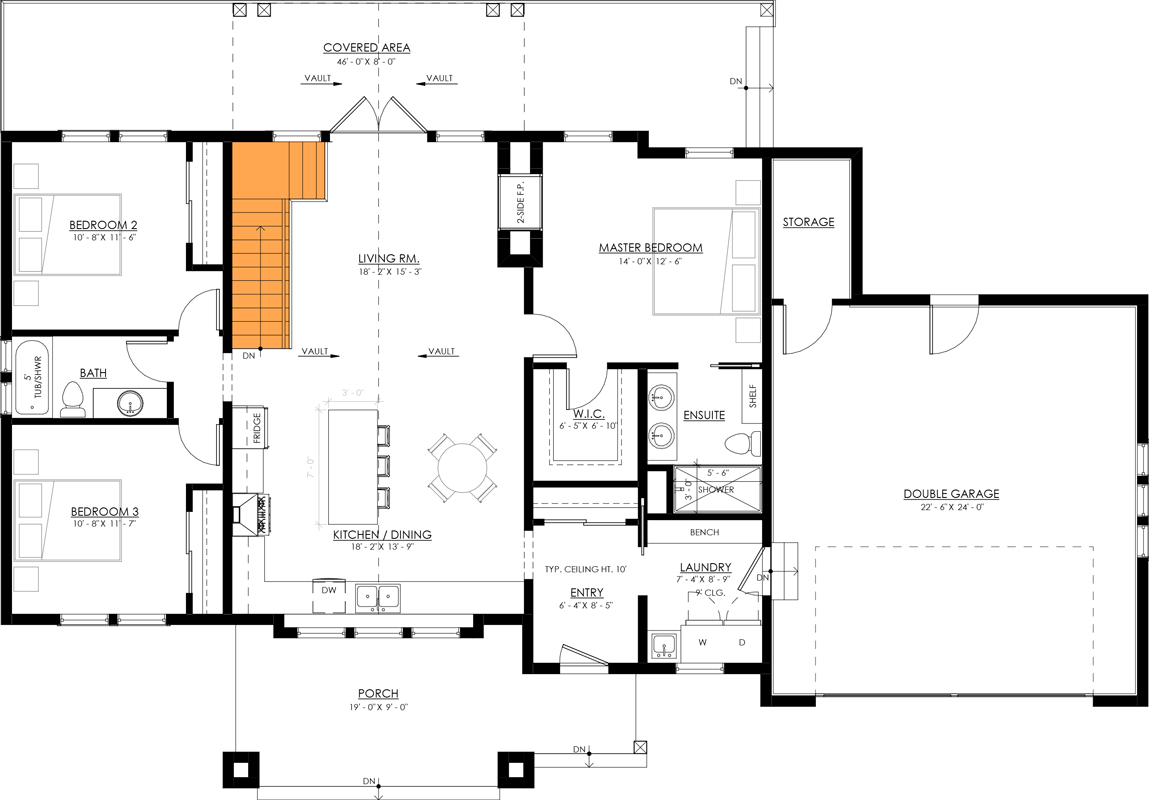
Floor Plan
Main Level - Basement Stairs
Reverse Floor Plan
Main Level
Reverse Floor Plan
Plan details
Square Footage Breakdown
Total Heated Area:
1,458 sq. ft.
1st Floor:
1,458 sq. ft.
Deck & Porch:
595 sq. ft.
Deck:
384 sq. ft.
Porch, Front:
211 sq. ft.
Beds/Baths
Bedrooms:
3
Full bathrooms:
2
Foundation Type
Standard Foundations:
Crawl
Optional Foundations:
Slab, Basement, Walkout
Exterior Walls
Standard Type(s):
2x6
Dimensions
Width:
70' 0"
Depth:
43' 0"
Max ridge height:
24' 3"
Garage
Type:
Attached
Area:
627 sq. ft.
Count:
2 Cars
Entry Location:
Front
Ceiling Heights
Floor / Height:
First Floor / 10' 0"
Room Details
Ceiling Type
Width
Depth
Height
Great Room
Vaulted
10' 0" to 16' 9"
Laundry Room
9' 0"
Roof Details
Primary Pitch:
12 on 12
Secondary Pitch:
9 on 12
Framing Type:
Truss