

Total Heated Area
0 sq. ft.
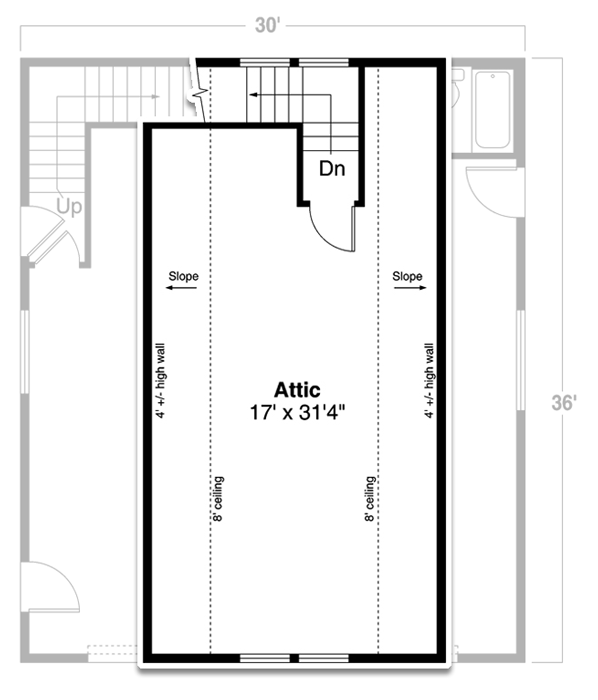
Attic
593 sq. ft.
Bedrooms
0
Full bathrooms
1
Standard Foundations
Slab
Exterior Walls
2x6
Width
30' 0"
Depth
36' 0"
Max Ridge Height
27' 6"
Type
Detached
Area
1080 sq. ft.
Count
2 Cars
Entry Location
Front
First Floor
14'
Second Floor
8'
Primary Pitch
10 on 12
Framing Type
Stick
Total Heated Area
0 sq. ft.
Attic
593 sq. ft.
Bedrooms
0
Full bathrooms
1
Standard Foundations
Slab
Exterior Walls
2x6
Width
30' 0"
Depth
36' 0"
Max Ridge Height
27' 6"
Type
Detached
Area
1080 sq. ft.
Count
2 Cars
Entry Location
Front
First Floor
14'
Second Floor
8'
Primary Pitch
10 on 12
Framing Type
Stick