

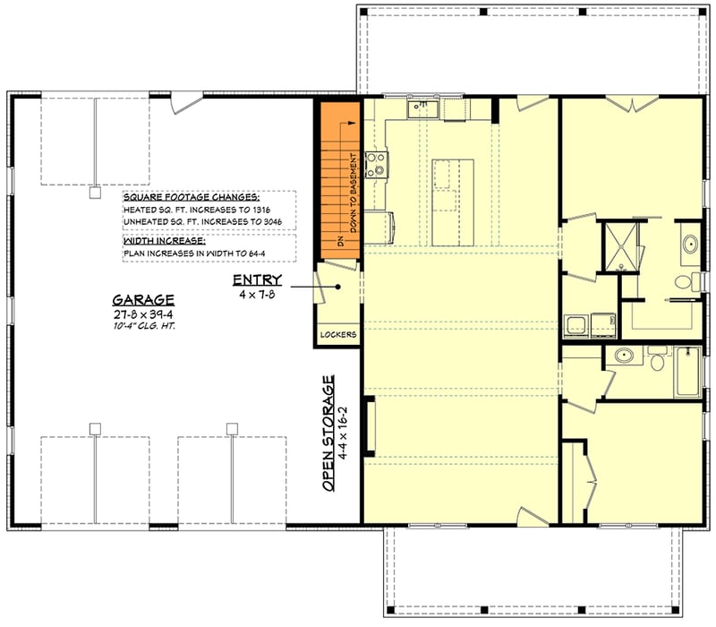
Total Heated Area
1,280 sq. ft.
1st Floor
1,280 sq. ft.
Porch, Front
216 sq. ft.
Porch, Rear
256 sq. ft.
Bedrooms
2
Full bathrooms
2
Standard Foundations
Slab
Exterior Walls
2x4
Optional Type(s)
2x6
Width
60' 0"
Depth
56' 0"
Max Ridge Height
21' 0"
Type
Attached
Area
1120 sq. ft.
Count
2 Cars
Entry Location
Front
First Floor
10'
Primary Pitch
6 on 12
Secondary Pitch
2 on 12
Framing Type
Stick And Truss
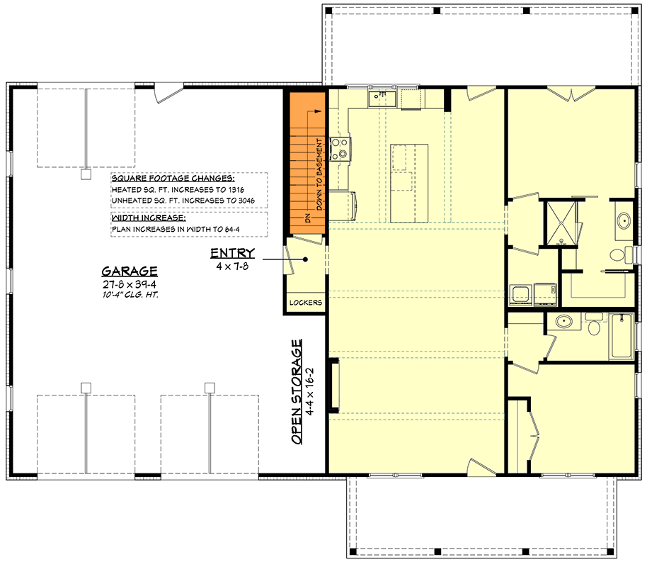
Total Heated Area
1,280 sq. ft.
1st Floor
1,280 sq. ft.
Porch, Front
216 sq. ft.
Porch, Rear
256 sq. ft.
Bedrooms
2
Full bathrooms
2
Standard Foundations
Slab
Exterior Walls
2x4
Optional Type(s)
2x6
Width
60' 0"
Depth
56' 0"
Max Ridge Height
21' 0"
Type
Attached
Area
1120 sq. ft.
Count
2 Cars
Entry Location
Front
First Floor
10'
Primary Pitch
6 on 12
Secondary Pitch
2 on 12
Framing Type
Stick And Truss