

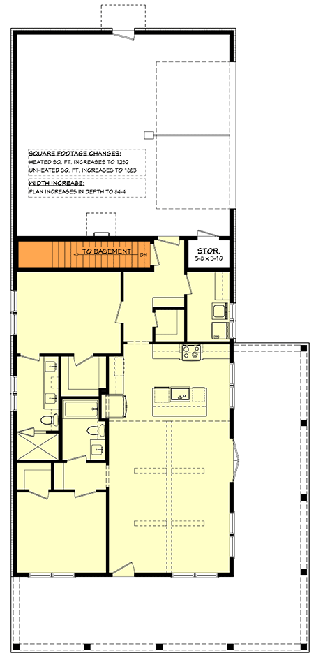
Total Heated Area
1,260 sq. ft.
1st Floor
1,260 sq. ft.
Porch, Front
400 sq. ft.
Porch, Rear
315 sq. ft.
Bedrooms
2
Full bathrooms
2
Standard Foundations
Slab
Exterior Walls
2x6
Width
40' 0"
Depth
80' 0"
Max Ridge Height
26' 0"
Type
Attached
Area
840 sq. ft.
Count
2 Cars
Entry Location
Side
First Floor
10'
Room
Ceiling Type
Height
Great Room
Vaulted
10' 0''
Primary Pitch
8 on 12
Secondary Pitch
2.5 on 12
Framing Type
Stick
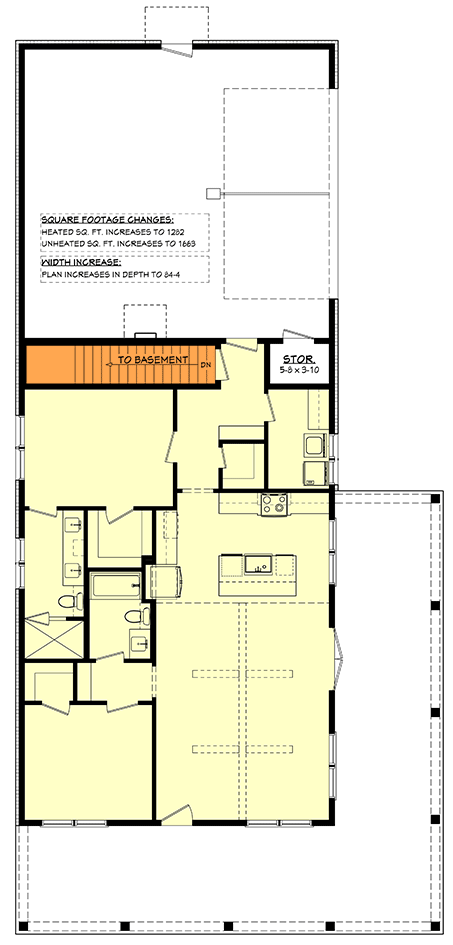
Total Heated Area
1,260 sq. ft.
1st Floor
1,260 sq. ft.
Porch, Front
400 sq. ft.
Porch, Rear
315 sq. ft.
Bedrooms
2
Full bathrooms
2
Standard Foundations
Slab
Exterior Walls
2x6
Width
40' 0"
Depth
80' 0"
Max Ridge Height
26' 0"
Type
Attached
Area
840 sq. ft.
Count
2 Cars
Entry Location
Side
First Floor
10'
Room
Ceiling Type
Height
Great Room
Vaulted
10' 0''
Primary Pitch
8 on 12
Secondary Pitch
2.5 on 12
Framing Type
Stick