

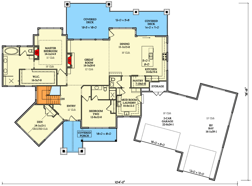
Total Heated Area
2,582 sq. ft.
1st Floor
2,582 sq. ft.
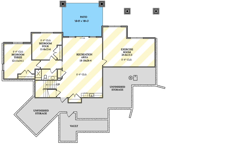
Basement Unfinished
914 sq. ft.
Optional Lower Level
1,609 sq. ft.
Porch, Combined
1,071 sq. ft.
Bedrooms
2, 3, or 4
Full bathrooms
2 or 3
Half bathrooms
1
Standard Foundations
Walkout
Exterior Walls
2x6
Width
104' 2"
Depth
78' 8"
Max Ridge Height
24' 4"
Type
Attached, RV Garage
Area
1225 sq. ft.
Count
3 Cars
Entry Location
Front
Lower Level
9'
First Floor
10'
Primary Pitch
8 on 12
Secondary Pitch
9 on 12
Total Heated Area
2,582 sq. ft.
1st Floor
2,582 sq. ft.
Basement Unfinished
914 sq. ft.
Optional Lower Level
1,609 sq. ft.
Porch, Combined
1,071 sq. ft.
Bedrooms
2, 3, or 4
Full bathrooms
2 or 3
Half bathrooms
1
Standard Foundations
Walkout
Exterior Walls
2x6
Width
104' 2"
Depth
78' 8"
Max Ridge Height
24' 4"
Type
Attached, RV Garage
Area
1225 sq. ft.
Count
3 Cars
Entry Location
Front
Lower Level
9'
First Floor
10'
Primary Pitch
8 on 12
Secondary Pitch
9 on 12