LogoLogo TaglineLogo Tagline
Loading...
Plan 72453DA

2-Car Detached Cottage-Style Garage Plan - 780 Sq Ft

Heated S.F.
594
Beds
0
Baths
0.5
Stories
2
Cars
2

Floor Plan

Plan 72453DA

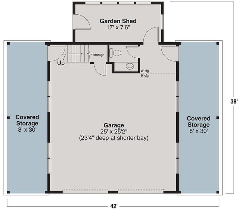
Main Level
Main Level
2nd Floor
2nd Floor
3rd Floor
3rd Floor

Plan 72453DA

M-F 9am-5pm EST |

1-203-761-8500

Main Level

Plan 72453DA: 2-Car Detached Cottage-Style Garage Plan - 780 Sq Ft - Floor Plan - Main Level - Cottage, Country

2nd Floor

Plan 72453DA: 2-Car Detached Cottage-Style Garage Plan - 780 Sq Ft - Floor Plan - 2nd Floor - Cottage, Country

3rd Floor

Plan 72453DA: 2-Car Detached Cottage-Style Garage Plan - 780 Sq Ft - Floor Plan - 3rd Floor - Cottage, Country

Plan Details

  • This two-story cottage-style garage combines practical storage with a welcoming design. The main level includes a two-bay garage flanked by covered storage areas. 
  • Above, dormer windows bring light into a versatile attic space that can serve as a home office, studio, or extra storage. A rooftop deck, reached via pull-down stairs, offers a private outdoor retreat. 
  • We curate and add to our design portfolio every day as we work with hundreds of residential building designers and architects to bring you the most diverse and best house plans available.
  • We can modify any house plan you see on our site. Learn more about modifications.

What's Included

Each plan set is drawn at 1/4"=1' scale and includes the following drawings:
  • Cover Sheet/Artist's Rendering: An artist's drawing of the home, usually viewed from the front, and general construction notes.
  • Elevations: Shows the front, sides, and rear, including exterior materials, trim sizes, roof pitches, etc.
  • Main Floor Plan: Shows placement and dimensions of walls, doors, & windows. Includes the location of appliances, plumbing fixtures, beams, ceiling heights, etc.
  • Second Floor Plan (if any): Shows the second floor in the same detail as the main floor. Includes second floor framing and details. 
  • Foundation Plan: Shows the location of all concrete footings, floor beams, first floor framing, and foundation details. If there is a basement, a basement plan is included which shows all basement details. Foundation types vary; please call to confirm the foundation type of the plan you are interested in.
  • Roof Framing Plan: Shows roof outlines, conventional framing/trusses, beams, roof framing details, etc. Specific details such as fireplaces, stairways, decks, etc. Details are drawn at 1/2" = 1' scale, and appear as needed throughout the prints.
  • Building Section: Shows a cross-section of the home. Shows support members, exterior and interior materials, insulation, and foundation.
  • Electrical Plan: A schematic layout of all lighting, switches, and electrical outlets.

What's Not Included

  • Architectural or Engineering Stamp - handled locally if required
  • Site Plan - handled locally when required
  • Mechanical Drawings (location of heating and air equipment and duct work) - your subcontractors handle this
  • Plumbing Drawings (drawings showing the actual plumbing pipe sizes and locations) - your subcontractors handle this
  • Energy calculations - handled locally when required

Starting at

Loading...
Price Match Guarantee
What's included?

FORMAT & LICENSE

Choose an option

$0

Not sure what to choose?

Pointer link icon

FOUNDATION

Choose an option

+$0

OPTIONS

Choose Additional Options

+$0

Loading...

Modify this Plan

Receive a free modification quote within 3 business days.

Loading...

Start with a Cost Report

Calculate the cost to build & furnish your home.

Loading...
Loading...

Square Footage Breakdown

Total Heated Area

594 sq. ft.

2nd Floor

594 sq. ft.

Porch, Combined

480 sq. ft.

Storage

144 sq. ft.

Beds/Baths

Bedrooms

0

Foundation Type

Standard Foundations

Slab

Exterior Walls

Exterior Walls

2x6

Dimensions

Width

42' 0"

Depth

38' 0"

Max Ridge Height

25' 3"

Garage

Type

Detached

Area

780 sq. ft.

Count

2 Cars

Entry Location

Front

Ceiling Heights

First Floor

9'

Second Floor

8'

Roof Details

Primary Pitch

4 on 12

Framing Type

Stick

Architectural Style

Cottage

Square Footage Breakdown

Total Heated Area

594 sq. ft.

2nd Floor

594 sq. ft.

Porch, Combined

480 sq. ft.

Storage

144 sq. ft.

Beds/Baths

Bedrooms

0

Foundation Type

Standard Foundations

Slab

Exterior Walls

Exterior Walls

2x6

Dimensions

Width

42' 0"

Depth

38' 0"

Max Ridge Height

25' 3"

Garage

Type

Detached

Area

780 sq. ft.

Count

2 Cars

Entry Location

Front

Ceiling Heights

First Floor

9'

Second Floor

8'

Roof Details

Primary Pitch

4 on 12

Framing Type

Stick

Architectural Style

* Please note that all sale prices and promotions featured on our website are subject to change without prior notice. While we strive to provide accurate and up-to-date information, occasional discrepancies may occur due to factors beyond our control. We encourage you to verify all details, including pricing and availability, before making any purchase. Exclusions or restrictions may apply to specific promotions. We reserve the right to modify or cancel any sale at our discretion. Thank you for your understanding and happy shopping!Let's go back to the top.