


Total Heated Area
2,113 sq. ft.
1st Floor
1,327 sq. ft.
2nd Floor
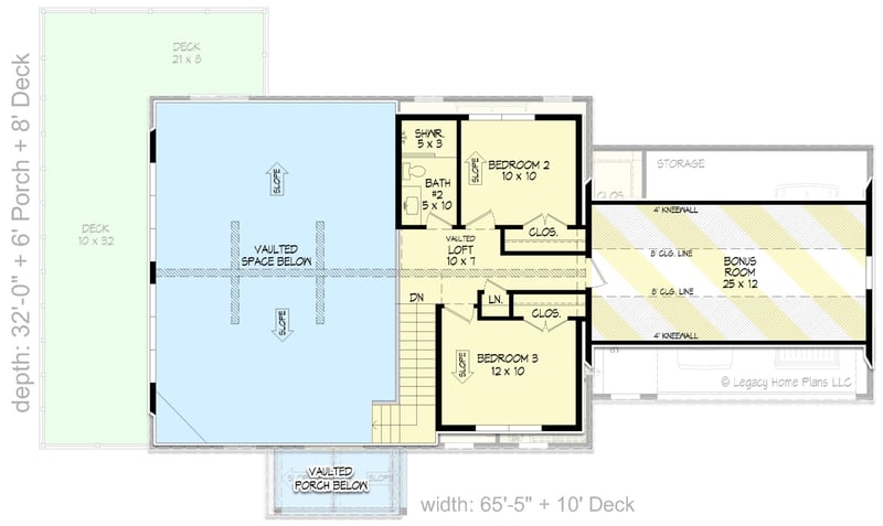
786 sq. ft.
Basement Unfinished
168 sq. ft.
Porch, Combined
557 sq. ft.
Bedrooms
3 or 4
Full bathrooms
2 or 3
Half bathrooms
1
Standard Foundations
Walkout
Exterior Walls
2x6
Width
75' 5"
Depth
44' 0"
Max Ridge Height
26' 10"
Type
Attached
Area
540 sq. ft.
Count
2 Cars
Entry Location
Front
Lower Level
9' 10"
First Floor
9'
Second Floor
15' 9"
Primary Pitch
12 on 12
Secondary Pitch
5 on 12
Framing Type
Stick
Total Heated Area
2,113 sq. ft.
1st Floor
1,327 sq. ft.
2nd Floor
786 sq. ft.
Basement Unfinished
168 sq. ft.
Porch, Combined
557 sq. ft.
Bedrooms
3 or 4
Full bathrooms
2 or 3
Half bathrooms
1
Standard Foundations
Walkout
Exterior Walls
2x6
Width
75' 5"
Depth
44' 0"
Max Ridge Height
26' 10"
Type
Attached
Area
540 sq. ft.
Count
2 Cars
Entry Location
Front
Lower Level
9' 10"
First Floor
9'
Second Floor
15' 9"
Primary Pitch
12 on 12
Secondary Pitch
5 on 12
Framing Type
Stick