LogoLogo TaglineLogo Tagline
Loading...
Plan 51990HZ

3-Bed Barndominium House Plan with Two-Story Great Room - 2000 Sq Ft

Heated S.F.
2,000
Beds
3
Baths
2.5
Stories
1
Cars
2

Floor Plan

Plan 51990HZ

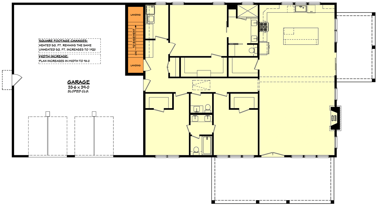
Main Level
Main Level
Basement Stairs Location
Basement Stairs Location

Plan 51990HZ

M-F 9am-5pm EST |

1-203-761-8500

Main Level

Plan 51990HZ: 3-Bed Barndominium House Plan with Two-Story Great Room - 2000 Sq Ft - Floor Plan - Main Level - Barndominium, Farmhouse, Modern, Transitional

Basement Stairs Location

Plan 51990HZ: 3-Bed Barndominium House Plan with Two-Story Great Room - 2000 Sq Ft - Floor Plan - Basement Stairs Location - Barndominium, Farmhouse, Modern, Transitional

Plan Details

  • This 2,000 sq. ft. modern farmhouse barndominium house plan features 3 bedrooms, 2.5 bathrooms, and an attached 1,200 sq. ft. two-car garage, showcasing a sleek blend of rustic charm and contemporary design.
  • Step inside to discover an expansive open-concept layout, immediately drawing the eye to the dramatic two-story great room, perfect for gathering and enjoying abundant natural light.
  • The main living areas flow seamlessly, with a well-appointed kitchen that includes a butler's walk-in pantry, providing ample storage and a discreet prep area, connecting effortlessly to dining and living spaces, while a convenient main-level laundry room simplifies daily chores.
  • The luxurious primary master suite is thoughtfully located on the first floor, offering a private retreat, while two secondary bedrooms are clustered on the main level, sharing a practical Jack & Jill bath.
  • A dedicated mudroom provides a practical transition space from the garage, keeping daily clutter organized and maintaining the home's pristine aesthetic.
  • Enjoy tranquil mornings or evening relaxation on the generous 380 sq. ft. covered front porch, an inviting outdoor extension of the living space, ideal for savoring the surrounding landscape.

What's Included

  • Cover Sheet with abbreviations, rendering, sheet index
  • Foundation plan with details
  • Detailed floor plan (includes window sizes, ceiling joist directions, plumbing fixture locations, etc.)
  • Four exterior views (front, rear, right, left)
  • Roof plan (birds eye view of roof)
  • Building section
  • Kitchen cabinet views
  • Electrical plan
  • Span charts and other misc details

View Sample Plan

What's Not Included

  • Architectural or Engineering Stamp - handled locally if required
  • Site Plan - handled locally when required
  • Mechanical Drawings (location of heating and air equipment and duct work) - your subcontractors handle this
  • Plumbing Drawings (drawings showing the actual plumbing pipe sizes and locations) - your subcontractors handle this
  • REScheck or other energy related calculations are NOT included.
  • Wind load or seismic calculations are NOT included. 
  • Framing plans or beam sizes are NOT included.
  • Other specific drawings that your local permit office may require

Starting at

Loading...
Price Match Guarantee
What's included?

FORMAT & LICENSE

Choose an option

$0

Not sure what to choose?

Pointer link icon

FOUNDATION

Choose an option

+$0

OPTIONS

Choose Additional Options

+$0

Loading...

Modify this Plan

Receive a free modification quote within 3 business days.

Loading...

Start with a Cost Report

Calculate the cost to build & furnish your home.

Loading...
Loading...

Square Footage Breakdown

Total Heated Area

2,000 sq. ft.

1st Floor

2,000 sq. ft.

Porch, Front

380 sq. ft.

Beds/Baths

Bedrooms

3

Full bathrooms

2

Half bathrooms

1

Foundation Type

Standard Foundations

Slab

Exterior Walls

Exterior Walls

2x6

Dimensions

Width

90' 0"

Depth

52' 0"

Max Ridge Height

20' 0"

Garage

Type

Attached

Area

1200 sq. ft.

Count

2 Cars

Entry Location

Front

Ceiling Heights

First Floor

9'

Roof Details

Primary Pitch

2 on 12

Framing Type

Stick

Architectural Style

Barndominium

Square Footage Breakdown

Total Heated Area

2,000 sq. ft.

1st Floor

2,000 sq. ft.

Porch, Front

380 sq. ft.

Beds/Baths

Bedrooms

3

Full bathrooms

2

Half bathrooms

1

Foundation Type

Standard Foundations

Slab

Exterior Walls

Exterior Walls

2x6

Dimensions

Width

90' 0"

Depth

52' 0"

Max Ridge Height

20' 0"

Garage

Type

Attached

Area

1200 sq. ft.

Count

2 Cars

Entry Location

Front

Ceiling Heights

First Floor

9'

Roof Details

Primary Pitch

2 on 12

Framing Type

Stick

* Please note that all sale prices and promotions featured on our website are subject to change without prior notice. While we strive to provide accurate and up-to-date information, occasional discrepancies may occur due to factors beyond our control. We encourage you to verify all details, including pricing and availability, before making any purchase. Exclusions or restrictions may apply to specific promotions. We reserve the right to modify or cancel any sale at our discretion. Thank you for your understanding and happy shopping!Let's go back to the top.