LogoLogo TaglineLogo Tagline
Loading...
Plan 70516MK

3 Bed Country Home Plan with 2 Porches

Heated S.F.
2,921
Beds
3
Baths
3
Stories
1
Cars
2

Floor Plan

Plan 70516MK

Main Level
Main Level

Plan 70516MK

M-F 9am-5pm EST |

1-203-761-8500

Main Level

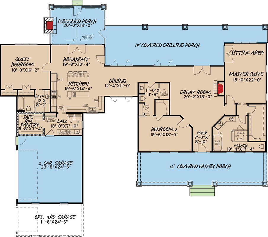
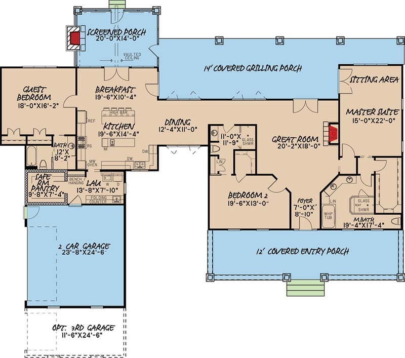
Plan 70516MK: 3 Bed Country Home Plan with 2 Porches - Floor Plan - Main Level - Country, Southern

Plan Details

  • This 3 bed country house plan has a board & batten exterior with a stone base and a massive front covered porch.
  • The foyer leads to the great room with a fireplace and access to the large rear grilling porch.
  • The master suite occupies the entire right side of the home and has a sitting area next to a wall of windows and a set of French doors that open to the rear porch. The master bath features a huge walk-in closet, dual sinks, a whirlpool tub, and an incredible glass shower you can walk around on three sides. Bed 2 is very spacious as well and has a walk-in closet and full bath.
  • Down the hall from the great room is large kitchen with a prep island as well as an eat-at island bar. A dining and breakfast area are also adjacent to the kitchen. And just off of the kitchen is the laundry room and a large walk-in pantry/safe room.
  • All the way on the left, the guest room gives you two closets and a full bath.
  • A cozy screened porch is behind the breakfast area that has a fireplace and access to the grilling porch.
  • The stick framed roof has an 8:12 primary pitch and a 4:12 secondary pitch.

What's Included

  • Foundation Plan (1/4″ or 1/2″ = 1′)
  • Floor Plans (1/4″= 1′)
  • Set of Elevations (1/4″= 1′)
  • Miscellaneous Details (3/4″ = 1′)
  • Roof Overview Plan (1/4"=1")
  • An electrical diagram showing a Birdseye view of rooms with lights, fans to switches

What's Not Included

  • Architectural or Engineering Stamp - handled locally if required
  • Site Plan - handled locally when required
  • Mechanical Drawings (location of heating and air equipment and duct work) - your subcontractors handle this
  • Plumbing Drawings (drawings showing the actual plumbing pipe sizes and locations) - your subcontractors handle this
  • Energy calculations - handled locally when required

Starting at

Loading...
Price Match Guarantee
What's included?

FORMAT & LICENSE

Choose an option

$0

Not sure what to choose?

Pointer link icon

FOUNDATION

Choose an option

+$0

OPTIONS

Choose Additional Options

+$0

Loading...

Modify this Plan

Receive a free modification quote within 3 business days.

Loading...

Start with a Cost Report

Calculate the cost to build & furnish your home.

Loading...
Loading...

Square Footage Breakdown

Total Heated Area

2,921 sq. ft.

1st Floor

2,921 sq. ft.

Porch, Combined

1,595 sq. ft.

Beds/Baths

Bedrooms

3

Full bathrooms

3

Foundation Type

Standard Foundations

Crawl, Slab

Exterior Walls

Exterior Walls

2x4

Optional Type(s)

2x6

Dimensions

Width

97' 10"

Depth

72' 10"

Max Ridge Height

25' 7"

Garage

Type

Attached

Area

611 sq. ft.

Count

2 Cars

Entry Location

Side

Ceiling Heights

First Floor

10'

Roof Details

Primary Pitch

8 on 12

Framing Type

Stick

Architectural Style

Country

Square Footage Breakdown

Total Heated Area

2,921 sq. ft.

1st Floor

2,921 sq. ft.

Porch, Combined

1,595 sq. ft.

Beds/Baths

Bedrooms

3

Full bathrooms

3

Foundation Type

Standard Foundations

Crawl, Slab

Exterior Walls

Exterior Walls

2x4

Optional Type(s)

2x6

Dimensions

Width

97' 10"

Depth

72' 10"

Max Ridge Height

25' 7"

Garage

Type

Attached

Area

611 sq. ft.

Count

2 Cars

Entry Location

Side

Ceiling Heights

First Floor

10'

Roof Details

Primary Pitch

8 on 12

Framing Type

Stick

Architectural Style

* Please note that all sale prices and promotions featured on our website are subject to change without prior notice. While we strive to provide accurate and up-to-date information, occasional discrepancies may occur due to factors beyond our control. We encourage you to verify all details, including pricing and availability, before making any purchase. Exclusions or restrictions may apply to specific promotions. We reserve the right to modify or cancel any sale at our discretion. Thank you for your understanding and happy shopping!Let's go back to the top.