LogoLogo TaglineLogo Tagline
Loading...
Plan 500051VV

Exclusive

3-Bed Country Home Plan with 3-Sided Wraparound Porch

Heated S.F.
1,923
Beds
3
Baths
2.5
Stories
2

Floor Plan

Plan 500051VV

Main Level
Main Level
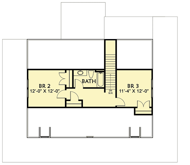
2nd Floor
2nd Floor

Plan 500051VV

M-F 9am-5pm EST |

1-203-761-8500

Main Level

Plan 500051VV: 3-Bed Country Home Plan with 3-Sided Wraparound Porch - Floor Plan - Main Level - Cottage, Country, Farmhouse, Southern

2nd Floor

Plan 500051VV: 3-Bed Country Home Plan with 3-Sided Wraparound Porch - Floor Plan - 2nd Floor - Cottage, Country, Farmhouse, Southern

Plan Details

  • A covered porch wraps around three sides of this lovely 3-bed country home plan. A large gable is centered over the French doors in front and two matching dormers compliment it, one on either side.
  • The master bedroom is on the main floor. The bath has twin vanities and a walk-in shower and there is a roomy walk-in closet.
  • The remainder of the main floor is dedicated to an open concept layout with the kitchen - with its angled island with counter seating - having commanding views of the dining and great rooms.
  • A family entry is located in the back-right corner. Cubbies and laundry make this a useful space.
  • Two bedrooms share a bath upstairs.

What's Included

  • Cover sheet with notes
  • Foundation
  • Floor plans 
  • Elevations
  • Sections
  • Framing plans
  • Electrical plans 

What's Not Included

  • Architectural or Engineering Stamp - handled locally if required
  • Site Plan - handled locally when required
  • Mechanical Drawings (location of heating and air equipment and duct work) - your subcontractors handle this
  • Plumbing Drawings (drawings showing the actual plumbing pipe sizes and locations) - your subcontractors handle this
  • Energy calculations - handled locally when required

Starting at

Loading...
Price Match Guarantee
What's included?

FORMAT & LICENSE

Choose an option

$0

Not sure what to choose?

Pointer link icon

FOUNDATION

Choose an option

+$0

OPTIONS

Choose Additional Options

+$0

Loading...

Modify this Plan

Receive a free modification quote within 3 business days.

Loading...

Start with a Cost Report

Calculate the cost to build & furnish your home.

Loading...
Loading...

Square Footage Breakdown

Total Heated Area

1,923 sq. ft.

1st Floor

1,416 sq. ft.

2nd Floor

507 sq. ft.

Porch, Combined

1,024 sq. ft.

Deck

170 sq. ft.

Beds/Baths

Bedrooms

3

Full bathrooms

2

Half bathrooms

1

Foundation Type

Standard Foundations

Crawl

Exterior Walls

Exterior Walls

2x4

Optional Type(s)

2x6

Dimensions

Width

56' 8"

Depth

52' 0"

Max Ridge Height

24' 4"

Ceiling Heights

First Floor

9'

Second Floor

8'

Roof Details

Primary Pitch

10 on 12

Secondary Pitch

18 on 12

Framing Type

Truss

Architectural Style

Cottage

Plan Collections

Square Footage Breakdown

Total Heated Area

1,923 sq. ft.

1st Floor

1,416 sq. ft.

2nd Floor

507 sq. ft.

Porch, Combined

1,024 sq. ft.

Deck

170 sq. ft.

Beds/Baths

Bedrooms

3

Full bathrooms

2

Half bathrooms

1

Foundation Type

Standard Foundations

Crawl

Exterior Walls

Exterior Walls

2x4

Optional Type(s)

2x6

Dimensions

Width

56' 8"

Depth

52' 0"

Max Ridge Height

24' 4"

Ceiling Heights

First Floor

9'

Second Floor

8'

Roof Details

Primary Pitch

10 on 12

Secondary Pitch

18 on 12

Framing Type

Truss

Plan Collections

* Please note that all sale prices and promotions featured on our website are subject to change without prior notice. While we strive to provide accurate and up-to-date information, occasional discrepancies may occur due to factors beyond our control. We encourage you to verify all details, including pricing and availability, before making any purchase. Exclusions or restrictions may apply to specific promotions. We reserve the right to modify or cancel any sale at our discretion. Thank you for your understanding and happy shopping!Let's go back to the top.