LogoLogo TaglineLogo Tagline
Loading...
Plan 58624SV

3-Bed Country House Plan with Bonus Room above Garage

Heated S.F.
2,123
Beds
3
Baths
2
Stories
2
Cars
2

Floor Plan

Plan 58624SV

Main Level
Main Level
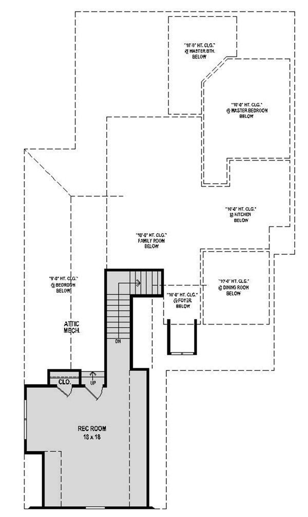
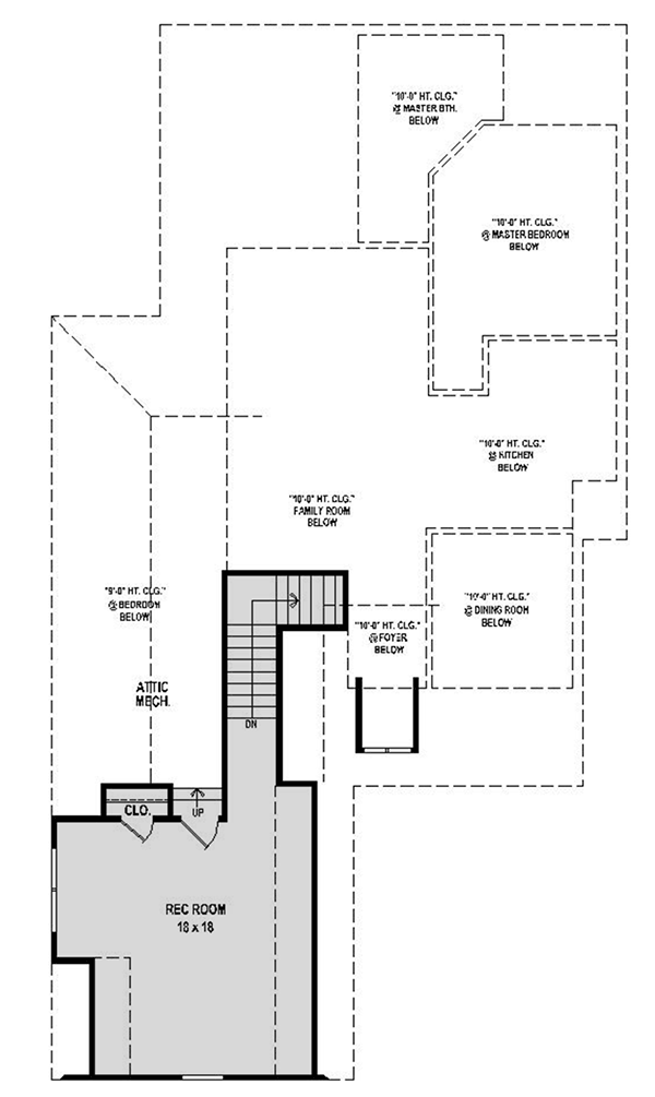
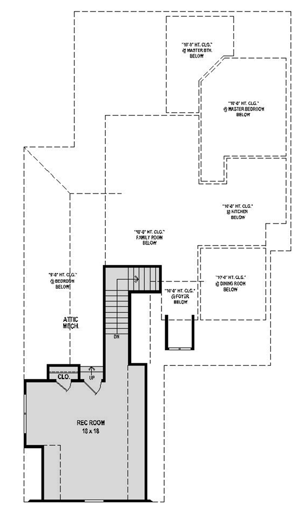
2nd Floor
2nd Floor

Plan 58624SV

M-F 9am-5pm EST |

1-203-761-8500

Main Level

Plan 58624SV: 3-Bed Country House Plan with Bonus Room above Garage - Floor Plan - Main Level - Country, Craftsman, New American

2nd Floor

Plan 58624SV: 3-Bed Country House Plan with Bonus Room above Garage - Floor Plan - 2nd Floor - Country, Craftsman, New American

Plan Details

  • This charming, country house plan features an inviting front porch, privately situated master bedroom, and bonus room above the 2-car garage.
  • Once inside, a formal dining room sits to the right of the foyer, which leads into a generously-sized family room. The kitchen features U-shaped counters, with a snack bar, and a pantry is within reach for easy access.
  • The rear-facing, master bedroom presents a deluxe en suite with a commode room and sizable walk-in closet.
  • Bedrooms 2 and 3 are identical in size, and separated by a full bath, with a linen closet.
  • A bonus room sits atop the 2-car garage, and offers space for a playroom or home office.

What's Included

  • Foundation Sheet
  • 1st Level Floor Plan
  • 2nd & 3rd Level Floor Plans
  • Framing Section
  • Roof Plan
  • Cabinet Details
  • Stair Detail
  • Front and Side Elevation
  • Rear and Side Elevations
May not apply to carports, garages, pool houses, storage bldgs, barns, ETC

What's Not Included

  • Architectural or Engineering Stamp - handled locally if required 
  • Site Plan - handled locally when required 
  • Mechanical Drawings (location of heating and air equipment and duct work) - your subcontractors handle this 
  • Plumbing Drawings (drawings showing the actual plumbing pipe sizes and locations) - your subcontractors handle this 
  • Energy calculations - handled locally when required

Starting at

Loading...
Price Match Guarantee
What's included?

FORMAT & LICENSE

Choose an option

$0

Not sure what to choose?

Pointer link icon

FOUNDATION

Choose an option

+$0

OPTIONS

Choose Additional Options

+$0

Loading...

Modify this Plan

Receive a free modification quote within 3 business days.

Loading...

Start with a Cost Report

Calculate the cost to build & furnish your home.

Loading...
Loading...

Square Footage Breakdown

Total Heated Area

2,123 sq. ft.

1st Floor

1,676 sq. ft.

2nd Floor

447 sq. ft.

Bonus

447 sq. ft.

Porch, Combined

325 sq. ft.

Beds/Baths

Bedrooms

3

Full bathrooms

2

Foundation Type

Standard Foundations

Slab

Exterior Walls

Exterior Walls

2x4

Optional Type(s)

2x6

Dimensions

Width

40' 3"

Depth

74' 5"

Max Ridge Height

24' 6"

Garage

Type

Attached

Area

462 sq. ft.

Count

2 Cars

Entry Location

Courtyard

Ceiling Heights

First Floor

9'

Second Floor

8'

Roof Details

Primary Pitch

14 on 12

Framing Type

Stick

Architectural Style

Country

Square Footage Breakdown

Total Heated Area

2,123 sq. ft.

1st Floor

1,676 sq. ft.

2nd Floor

447 sq. ft.

Bonus

447 sq. ft.

Porch, Combined

325 sq. ft.

Beds/Baths

Bedrooms

3

Full bathrooms

2

Foundation Type

Standard Foundations

Slab

Exterior Walls

Exterior Walls

2x4

Optional Type(s)

2x6

Dimensions

Width

40' 3"

Depth

74' 5"

Max Ridge Height

24' 6"

Garage

Type

Attached

Area

462 sq. ft.

Count

2 Cars

Entry Location

Courtyard

Ceiling Heights

First Floor

9'

Second Floor

8'

Roof Details

Primary Pitch

14 on 12

Framing Type

Stick

Architectural Style

* Please note that all sale prices and promotions featured on our website are subject to change without prior notice. While we strive to provide accurate and up-to-date information, occasional discrepancies may occur due to factors beyond our control. We encourage you to verify all details, including pricing and availability, before making any purchase. Exclusions or restrictions may apply to specific promotions. We reserve the right to modify or cancel any sale at our discretion. Thank you for your understanding and happy shopping!Let's go back to the top.