

Total Heated Area
2,769 sq. ft.
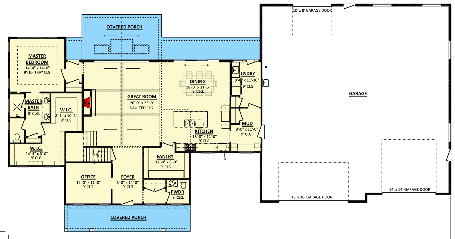
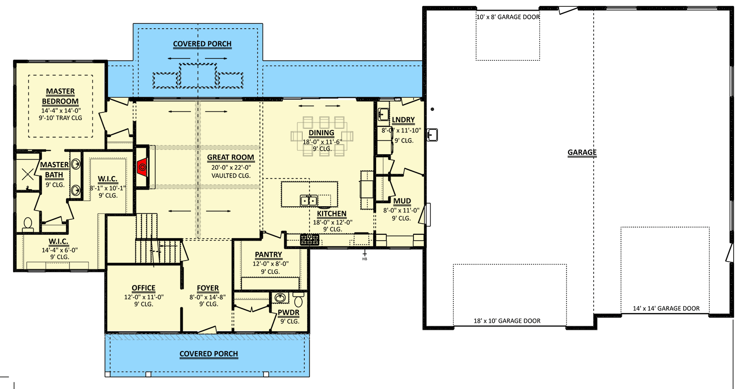
1st Floor
2,206 sq. ft.
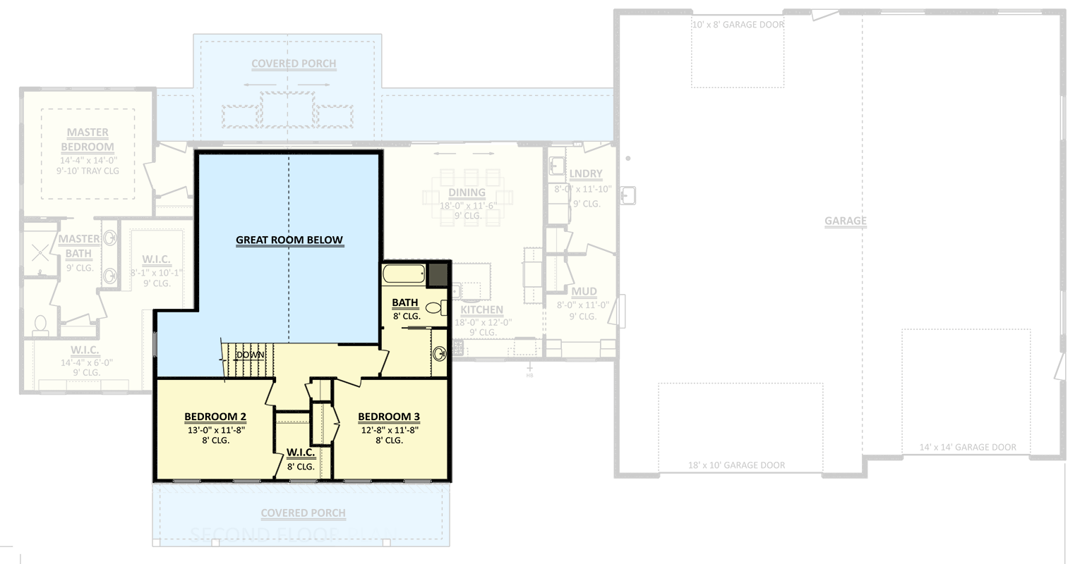
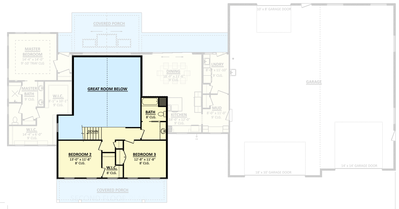
2nd Floor
563 sq. ft.
Basement Unfinished
2,046 sq. ft.
Porch, Front
231 sq. ft.
Porch, Rear
465 sq. ft.
Bedrooms
3
Full bathrooms
2
Half bathrooms
1
Standard Foundations
Basement
Exterior Walls
2x4
Optional Type(s)
2x6
Width
116' 0"
Depth
60' 0"
Max Ridge Height
30' 8"
Type
Attached, RV Garage
Area
2560 sq. ft.
Count
3, 4, 5, 6, 7, or 8 Cars
Entry Location
Front
Lower Level
9'
First Floor
9'
Second Floor
8'
Primary Pitch
10 on 12
Secondary Pitch
9 on 12
Framing Type
Truss
Total Heated Area
2,769 sq. ft.
1st Floor
2,206 sq. ft.
2nd Floor
563 sq. ft.
Basement Unfinished
2,046 sq. ft.
Porch, Front
231 sq. ft.
Porch, Rear
465 sq. ft.
Bedrooms
3
Full bathrooms
2
Half bathrooms
1
Standard Foundations
Basement
Exterior Walls
2x4
Optional Type(s)
2x6
Width
116' 0"
Depth
60' 0"
Max Ridge Height
30' 8"
Type
Attached, RV Garage
Area
2560 sq. ft.
Count
3, 4, 5, 6, 7, or 8 Cars
Entry Location
Front
Lower Level
9'
First Floor
9'
Second Floor
8'
Primary Pitch
10 on 12
Secondary Pitch
9 on 12
Framing Type
Truss