

Total Heated Area
2,880 sq. ft.
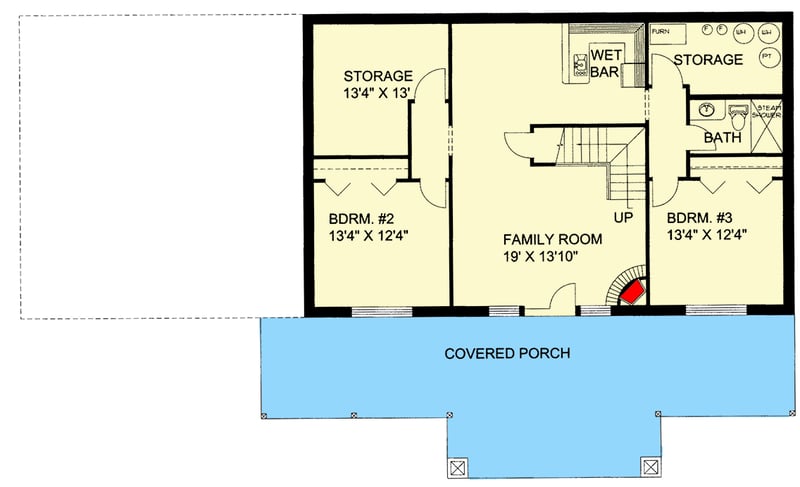
Lower Level
1,440 sq. ft.
1st Floor
1,440 sq. ft.
Bedrooms
3
Full bathrooms
2
Half bathrooms
1
Standard Foundations
Basement, Walkout
Exterior Walls
ICF
Width
76' 0"
Depth
30' 0"
Max Ridge Height
27' 9"
Type
Attached
Area
840 sq. ft.
Count
2 Cars
Entry Location
Side
Lower Level
9'
Room
Ceiling Type
Height
Main Level
Vaulted
9' 0''
Primary Pitch
5 on 12
Framing Type
Truss
Total Heated Area
2,880 sq. ft.
Lower Level
1,440 sq. ft.
1st Floor
1,440 sq. ft.
Bedrooms
3
Full bathrooms
2
Half bathrooms
1
Standard Foundations
Basement, Walkout
Exterior Walls
ICF
Width
76' 0"
Depth
30' 0"
Max Ridge Height
27' 9"
Type
Attached
Area
840 sq. ft.
Count
2 Cars
Entry Location
Side
Lower Level
9'
Room
Ceiling Type
Height
Main Level
Vaulted
9' 0''
Primary Pitch
5 on 12
Framing Type
Truss