
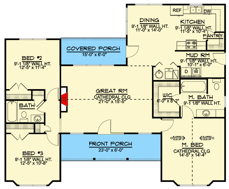
Total Heated Area
1,541 sq. ft.
1st Floor
1,541 sq. ft.
Porch, Front
138 sq. ft.
Porch, Rear
90 sq. ft.
Bedrooms
3
Full bathrooms
2
Standard Foundations
Slab
Exterior Walls
2x6
Width
51' 0"
Depth
42' 0"
Max Ridge Height
18' 11"
First Floor
9'
Primary Pitch
8 on 12
Framing Type
Truss
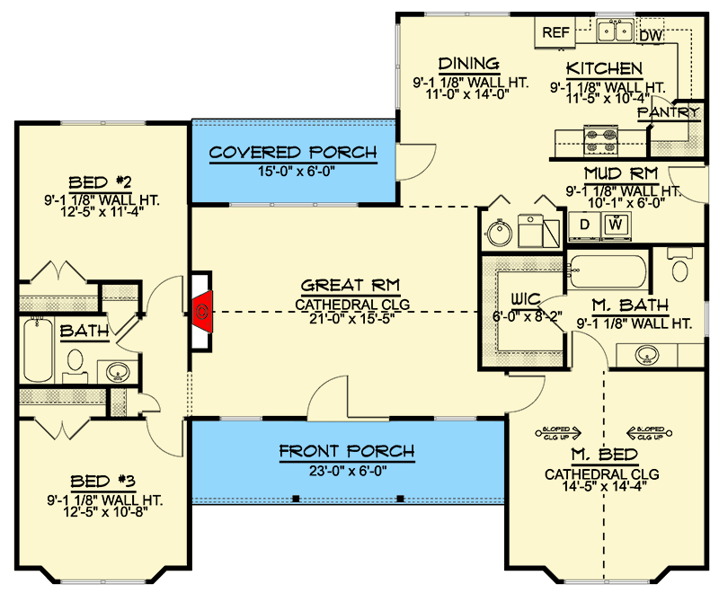
Total Heated Area
1,541 sq. ft.
1st Floor
1,541 sq. ft.
Porch, Front
138 sq. ft.
Porch, Rear
90 sq. ft.
Bedrooms
3
Full bathrooms
2
Standard Foundations
Slab
Exterior Walls
2x6
Width
51' 0"
Depth
42' 0"
Max Ridge Height
18' 11"
First Floor
9'
Primary Pitch
8 on 12
Framing Type
Truss