LogoLogo TaglineLogo Tagline
Loading...
Plan 72357DA

3-Car 1000 Square Foot Garage with Over 500 Square Feet of Space Above

Heated S.F.
571
Beds
0
Baths
0
Stories
2
Cars
3

Floor Plan

Plan 72357DA

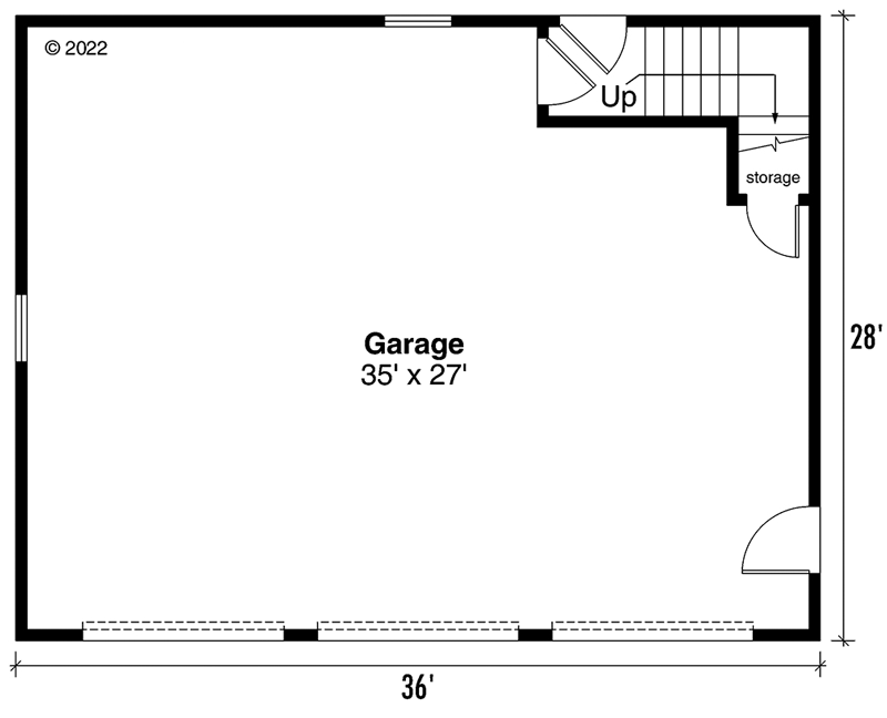
Main Level
Main Level
2nd Floor
2nd Floor

Plan 72357DA

M-F 9am-5pm EST |

1-203-761-8500

Main Level

Plan 72357DA: 3-Car 1000 Square Foot Garage with Over 500 Square Feet of Space Above - Floor Plan - Main Level - Country, Traditional

2nd Floor

Plan 72357DA: 3-Car 1000 Square Foot Garage with Over 500 Square Feet of Space Above - Floor Plan - 2nd Floor - Country, Traditional

Plan Details

  • This charming cottage-inspired garage plan can accommodate up to 3 cars (1,008 square feet of parking space). 
  •  Each of the garage doors are 9' wide and 8' tall. Along the back of the garage, a staircase leads up to the craft room with an 8' ceiling.
  • Stairs take you to an open room (571 square feet) that can be put to many uses.
  • Related Plans: Get alternate detached garages with plans 72340DA and 72289DA.

What's Included

Each plan set is drawn at 1/4"=1' scale and includes the following drawings:
  • Cover Sheet/Artist's Rendering: An artist's drawing of the home, usually viewed from the front, and general construction notes.
  • Elevations: Shows the front, sides, and rear, including exterior materials, trim sizes, roof pitches, etc.
  • Main Floor Plan: Shows placement and dimensions of walls, doors, & windows. Includes the location of appliances, plumbing fixtures, beams, ceiling heights, etc.
  • Second Floor Plan (if any): Shows the second floor in the same detail as the main floor. Includes second floor framing and details. 
  • Foundation Plan: Shows the location of all concrete footings, floor beams, first floor framing, and foundation details. If there is a basement, a basement plan is included which shows all basement details. Foundation types vary; please call to confirm the foundation type of the plan you are interested in.
  • Roof Framing Plan: Shows roof outlines, conventional framing/trusses, beams, roof framing details, etc. Specific details such as fireplaces, stairways, decks, etc. Details are drawn at 1/2" = 1' scale, and appear as needed throughout the prints.
  • Building Section: Shows a cross-section of the home. Shows support members, exterior and interior materials, insulation, and foundation.
  • Electrical Plan: A schematic layout of all lighting, switches, and electrical outlets.

What's Not Included

  • Architectural or Engineering Stamp - handled locally if required
  • Site Plan - handled locally when required
  • Mechanical Drawings (location of heating and air equipment and duct work) - your subcontractors handle this
  • Plumbing Drawings (drawings showing the actual plumbing pipe sizes and locations) - your subcontractors handle this
  • Energy calculations - handled locally when required
Starting at
Loading...
What's included?
Plan Set
Select...

Foundation
Select...

Options
Optional Add-Ons
+$0

Loading...
Price Match Guarantee
Cost to Build Report
Still deciding? Calculate the cost to build this house in your area.
Loading...
Customize This Plan
Need to make changes? We will get you a free price quote within 1 to 3 business days.
Cost to Furnish Report
Instant room-by-room estimates for your entire furniture & home decor plan, matched to your budget.
Loading...

Square Footage Breakdown

Total Heated Area

571 sq. ft.

2nd Floor

571 sq. ft.

Beds/Baths

Bedrooms

0

Foundation Type

Standard Foundations

Slab

Exterior Walls

Exterior Walls

2x6

Dimensions

Width

36' 0"

Depth

28' 0"

Max Ridge Height

21' 10"

Garage

Type

Detached

Area

1008 sq. ft.

Count

3 Cars

Entry Location

Front

Ceiling Heights

First Floor

9'

Second Floor

8'

Roof Details

Primary Pitch

8 on 12

Framing Type

Stick And Truss

Architectural Style

Country

Square Footage Breakdown

Total Heated Area

571 sq. ft.

2nd Floor

571 sq. ft.

Beds/Baths

Bedrooms

0

Foundation Type

Standard Foundations

Slab

Exterior Walls

Exterior Walls

2x6

Dimensions

Width

36' 0"

Depth

28' 0"

Max Ridge Height

21' 10"

Garage

Type

Detached

Area

1008 sq. ft.

Count

3 Cars

Entry Location

Front

Ceiling Heights

First Floor

9'

Second Floor

8'

Roof Details

Primary Pitch

8 on 12

Framing Type

Stick And Truss

Architectural Style

* Please note that all sale prices and promotions featured on our website are subject to change without prior notice. While we strive to provide accurate and up-to-date information, occasional discrepancies may occur due to factors beyond our control. We encourage you to verify all details, including pricing and availability, before making any purchase. Exclusions or restrictions may apply to specific promotions. We reserve the right to modify or cancel any sale at our discretion. Thank you for your understanding and happy shopping!Let's go back to the top.