

Total Heated Area
1,062 sq. ft.
1st Floor
259 sq. ft.
2nd Floor
803 sq. ft.
Porch, Combined
601 sq. ft.
Bedrooms
0
Standard Foundations
Slab
Exterior Walls
2x6
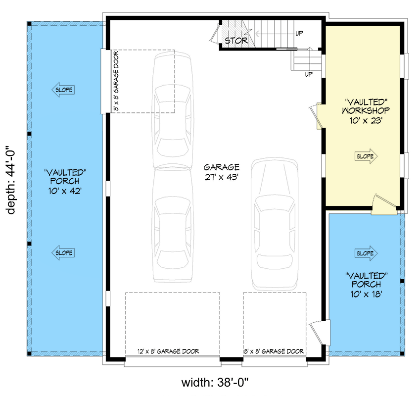
Width
38' 0"
Depth
44' 0"
Max Ridge Height
24' 7"
Type
Detached
Area
1282 sq. ft.
Count
3 Cars
Entry Location
Front
First Floor
9'
Second Floor
9'
Primary Pitch
12 on 12
Secondary Pitch
4 on 12
Framing Type
Truss
Total Heated Area
1,062 sq. ft.
1st Floor
259 sq. ft.
2nd Floor
803 sq. ft.
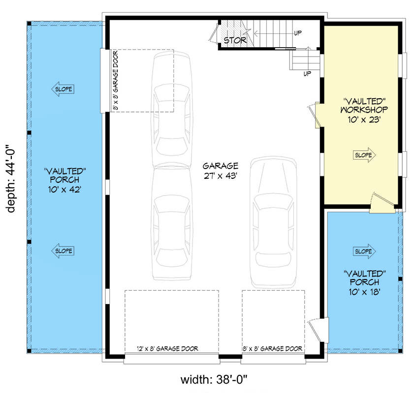
Porch, Combined
601 sq. ft.
Bedrooms
0
Standard Foundations
Slab
Exterior Walls
2x6
Width
38' 0"
Depth
44' 0"
Max Ridge Height
24' 7"
Type
Detached
Area
1282 sq. ft.
Count
3 Cars
Entry Location
Front
First Floor
9'
Second Floor
9'
Primary Pitch
12 on 12
Secondary Pitch
4 on 12
Framing Type
Truss