

Total Heated Area
2,522 sq. ft.
1st Floor
1,522 sq. ft.
2nd Floor
1,000 sq. ft.
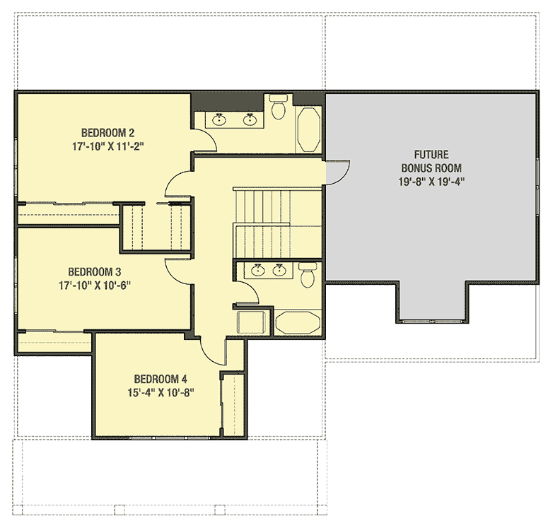
Bedrooms
4
Full bathrooms
3
Half bathrooms
1
Standard Foundations
Crawl
Exterior Walls
2x4
Width
54' 0"
Depth
53' 0"
Max Ridge Height
26' 4"
Type
Attached
Count
2 Cars
Entry Location
Front
First Floor
9'
Second Floor
9'
Total Heated Area
2,522 sq. ft.
1st Floor
1,522 sq. ft.
2nd Floor
1,000 sq. ft.
Bedrooms
4
Full bathrooms
3
Half bathrooms
1
Standard Foundations
Crawl
Exterior Walls
2x4
Width
54' 0"
Depth
53' 0"
Max Ridge Height
26' 4"
Type
Attached
Count
2 Cars
Entry Location
Front
First Floor
9'
Second Floor
9'