

Total Heated Area
2,657 sq. ft.
1st Floor
1,720 sq. ft.
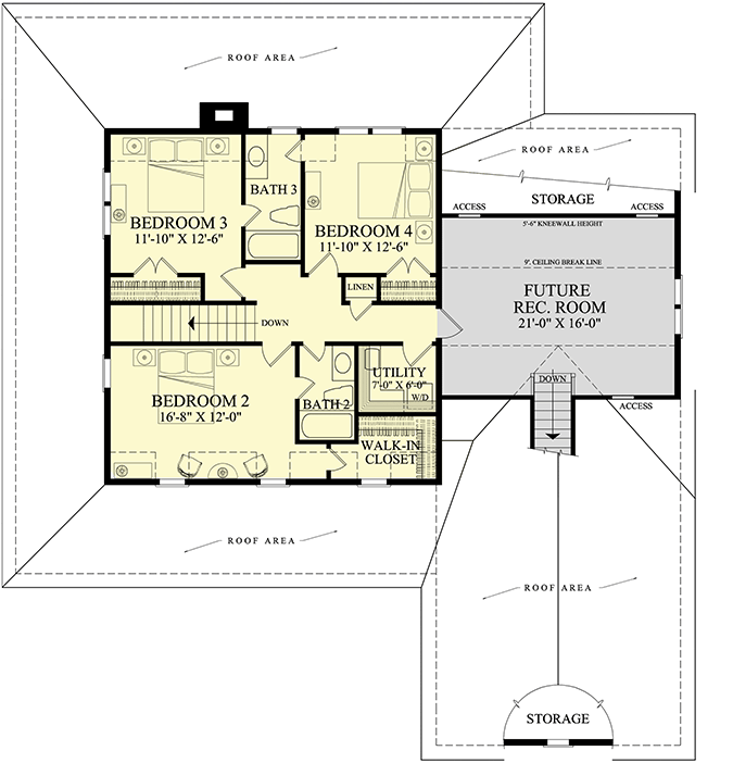
2nd Floor
937 sq. ft.
Bonus
351 sq. ft.
Bedrooms
4
Full bathrooms
3
Half bathrooms
1
Standard Foundations
Basement, Crawl
Exterior Walls
2x6
Width
59' 10"
Depth
68' 10"
Max Ridge Height
33' 0"
Type
Attached
Area
551 sq. ft.
Count
2 Cars
Entry Location
Side
First Floor
9'
Total Heated Area
2,657 sq. ft.
1st Floor
1,720 sq. ft.
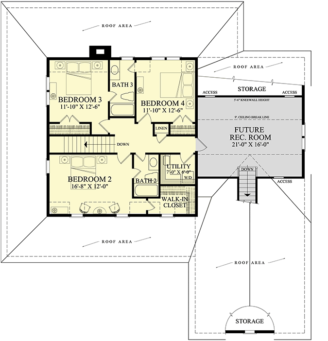
2nd Floor
937 sq. ft.
Bonus
351 sq. ft.
Bedrooms
4
Full bathrooms
3
Half bathrooms
1
Standard Foundations
Basement, Crawl
Exterior Walls
2x6
Width
59' 10"
Depth
68' 10"
Max Ridge Height
33' 0"
Type
Attached
Area
551 sq. ft.
Count
2 Cars
Entry Location
Side
First Floor
9'