LogoLogo TaglineLogo Tagline
Loading...
Plan 710293BTZ

4-Bed House Plan with High-Pitched Gables

Heated S.F.
3,558
Beds
4
Baths
3.5
Stories
2
Cars
3

Floor Plan

Plan 710293BTZ

Main Level
Main Level
2nd Floor
2nd Floor

Plan 710293BTZ

M-F 9am-5pm EST |

1-203-761-8500

Main Level

Plan 710293BTZ: 4-Bed House Plan with High-Pitched Gables - Floor Plan - Main Level - Southern, Traditional

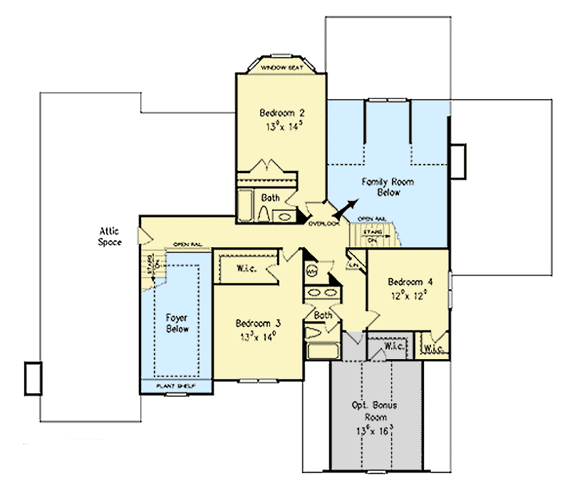
2nd Floor

Plan 710293BTZ: 4-Bed House Plan with High-Pitched Gables - Floor Plan - 2nd Floor - Southern, Traditional

Plan Details

  • An abundance of high-pitched gables mixed with a sturdy brick exterior gives this 4-bed house plan fantastic curb appeal while maintaining its classic European style. Inside, decorative columns and arched openings serve as transitional points from room-to-room, adding to the charm and unique character of this design. 
  • The open floorplan of the main living space creates a seamless feel to this expansive home, creating an ideal space for entertaining and large family gatherings. Just past the formal dining room, the living room can be found featuring a coffered ceiling and beautiful set of French doors looking out to the deck. 
  • The spacious kitchen and breakfast nook look onto a vaulted family room warmed up by a cozy fireplace. 
  • The master suite is located across the home, and has its own private sitting area. His-and-her closets flank the entry to the vaulted master bath complete with a soaking tub and walk-in shower. 
  • Upstairs, three secondary bedrooms are housed for the children with two full baths to share. An optional bonus room above the garage has endless finishing possibilities, including a guest suite or playroom. 

What's Included

  • Elevations -  at 1/4" or 3/16" and the side and rear elevations at 1/8" scale. The elevations show and note the exterior finished materials of the house. Unless shown otherwise, all foundation options will show walkout basement elevations. 
  • Foundation - every plan is available with a walkout style basement (three masonry walls and one wood framed rear wall with windows and doors).  The basement plans are a 1/4" or 3/16" scale layout of unfinished spaces showing only the necessary 2 x 6 wood framed load bearing walls.  These plans are completed with dimensions, door/window sizes.  Crawlspace and/or slab on grade foundations are available for some plans.  
  • Floor plan - each plan consists of 1/4" or 3/16" scale layouts showing the location of 2 x 4 walls, doors, windows, plumbing fixtures, cabinetry, stairs and decorative ceilings. These plans are complete with dimensions, notes, door/window sizes and a schematic electrical layout.
  • Building sections - Take vertical cuts throughout the house and the stairs showing floor, ceiling and roof height information.
  • Floor framing - if included it shows each floor joist indicating the size, spacing and length.  All beams are sized and labeled.  Each framing plan sheet includes any framing details that are needed (tray details, connections details, etc. All framing is designed using conventional 2 x 10 floor joist or wood I-joist, depending on the span conditions of each home. FRAMING PLANS ARE NOT AVAILABLE for all home so please follow up with us for availability.
  • Ceiling framing - if included, it shows each ceiling joist indicating the size, spacing and length.  All beams are sized and labeled.  All of the joists are counted and coordinated with the material list.  FRAMING PLANS ARE NOT AVAILABLE for all home so please follow up with us for availability.
  • Roof framing - if included, shows each rafter, valley, hip and ridge indicating size, spacing and length.  All beams are sized and labeled.  All of the joists are counted and coordinated with the material list.  FRAMING PLANS ARE NOT AVAILABLE for all home so please follow up with us for availability.
  • Details sheets - shows foundation details, typical wall section and other framing details.  Also included are miscellaneous interior trim and fireplace details that can be used to customize the home. 

What's Not Included

  • Architectural or Engineering Stamp
  • Site Plan
  • Mechanical Drawings (location of heating and air equipment and duct work)
  • Plumbing Drawings (drawings showing the actual plumbing pipe sizes and locations)
  • Energy calculations
  • Windows and Doors Schedules

Starting at

Loading...
Price Match Guarantee
What's included?

FORMAT & LICENSE

Choose an option

$0

Not sure what to choose?

Pointer link icon

FOUNDATION

Choose an option

+$0

OPTIONS

Choose Additional Options

+$0

Loading...

Modify this Plan

Receive a free modification quote within 3 business days.

Loading...

Start with a Cost Report

Calculate the cost to build & furnish your home.

Loading...
Loading...

Square Footage Breakdown

Total Heated Area

3,558 sq. ft.

1st Floor

2,493 sq. ft.

2nd Floor

1,065 sq. ft.

Basement Unfinished

2,493 sq. ft.

Bonus

277 sq. ft.

Beds/Baths

Bedrooms

4

Full bathrooms

3

Half bathrooms

1

Foundation Type

Standard Foundations

Crawl, Slab, Walkout

Exterior Walls

Exterior Walls

2x4

Dimensions

Width

78' 4"

Depth

68' 0"

Max Ridge Height

35' 6"

Garage

Type

Attached

Area

518 sq. ft.

Count

3 Cars

Entry Location

Front, Side

Roof Details

Primary Pitch

12 on 12

Framing Type

Stick

Architectural Style

Southern

Plan Collections

Square Footage Breakdown

Total Heated Area

3,558 sq. ft.

1st Floor

2,493 sq. ft.

2nd Floor

1,065 sq. ft.

Basement Unfinished

2,493 sq. ft.

Bonus

277 sq. ft.

Beds/Baths

Bedrooms

4

Full bathrooms

3

Half bathrooms

1

Foundation Type

Standard Foundations

Crawl, Slab, Walkout

Exterior Walls

Exterior Walls

2x4

Dimensions

Width

78' 4"

Depth

68' 0"

Max Ridge Height

35' 6"

Garage

Type

Attached

Area

518 sq. ft.

Count

3 Cars

Entry Location

Front, Side

Roof Details

Primary Pitch

12 on 12

Framing Type

Stick

Architectural Style

Plan Collections

* Please note that all sale prices and promotions featured on our website are subject to change without prior notice. While we strive to provide accurate and up-to-date information, occasional discrepancies may occur due to factors beyond our control. We encourage you to verify all details, including pricing and availability, before making any purchase. Exclusions or restrictions may apply to specific promotions. We reserve the right to modify or cancel any sale at our discretion. Thank you for your understanding and happy shopping!Let's go back to the top.