

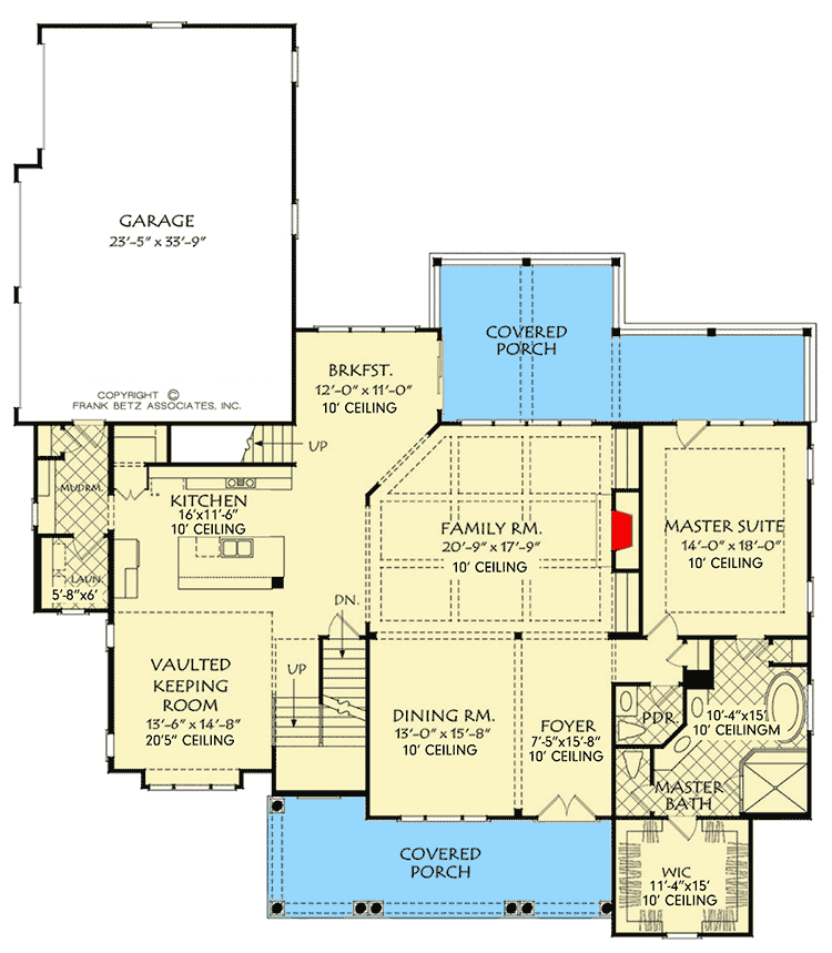
Total Heated Area
3,316 sq. ft.
1st Floor
2,304 sq. ft.
2nd Floor
1,012 sq. ft.
Basement Unfinished
2,304 sq. ft.
Bonus
517 sq. ft.
Porch, Front
251 sq. ft.
Porch, Rear
348 sq. ft.
Bedrooms
4
Full bathrooms
4
Half bathrooms
1
Standard Foundations
Crawl, Slab, Walkout
Exterior Walls
2x4
Width
68' 0"
Depth
78' 0"
Max Ridge Height
33' 0"
Type
Attached
Area
790 sq. ft.
Count
3 Cars
Entry Location
Side
First Floor
10'
Second Floor
9'
Primary Pitch
10 on 12
Framing Type
Stick
Total Heated Area
3,316 sq. ft.
1st Floor
2,304 sq. ft.
2nd Floor
1,012 sq. ft.
Basement Unfinished
2,304 sq. ft.
Bonus
517 sq. ft.
Porch, Front
251 sq. ft.
Porch, Rear
348 sq. ft.
Bedrooms
4
Full bathrooms
4
Half bathrooms
1
Standard Foundations
Crawl, Slab, Walkout
Exterior Walls
2x4
Width
68' 0"
Depth
78' 0"
Max Ridge Height
33' 0"
Type
Attached
Area
790 sq. ft.
Count
3 Cars
Entry Location
Side
First Floor
10'
Second Floor
9'
Primary Pitch
10 on 12
Framing Type
Stick