

Total Heated Area
3,626 sq. ft.
1st Floor
1,869 sq. ft.
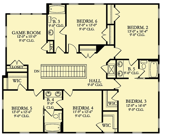
2nd Floor
1,757 sq. ft.
Porch, Front
348 sq. ft.
Porch, Rear
233 sq. ft.
Bedrooms
6
Full bathrooms
4
Half bathrooms
1
Standard Foundations
Monolithic Slab
Exterior Walls
Block / CMU (main floor)
Width
57' 4"
Depth
57' 0"
Max Ridge Height
29' 6"
Type
Attached
Area
646 sq. ft.
Count
3 Cars
Entry Location
Side
First Floor
10'
Primary Pitch
6 on 12
Secondary Pitch
4 on 12
Framing Type
Truss
Total Heated Area
3,626 sq. ft.
1st Floor
1,869 sq. ft.
2nd Floor
1,757 sq. ft.
Porch, Front
348 sq. ft.
Porch, Rear
233 sq. ft.
Bedrooms
6
Full bathrooms
4
Half bathrooms
1
Standard Foundations
Monolithic Slab
Exterior Walls
Block / CMU (main floor)
Width
57' 4"
Depth
57' 0"
Max Ridge Height
29' 6"
Type
Attached
Area
646 sq. ft.
Count
3 Cars
Entry Location
Side
First Floor
10'
Primary Pitch
6 on 12
Secondary Pitch
4 on 12
Framing Type
Truss