LogoLogo TaglineLogo Tagline
Loading...
Plan 31570GF

Adorable 3-Bedroom Cottage House Plan with Front and Side Porches - 1112 Sq Ft

Heated S.F.
1,112
Beds
3
Baths
2
Stories
2

Floor Plan

Plan 31570GF

Main Level
Main Level
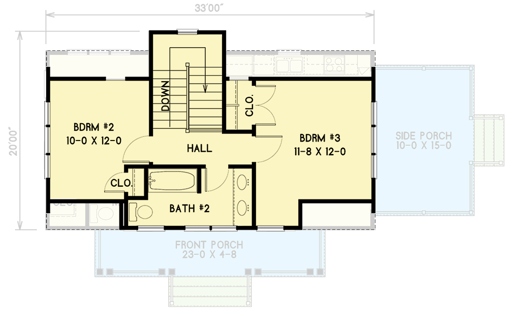
2nd Floor
2nd Floor

Plan 31570GF

M-F 9am-5pm EST |

1-203-761-8500

Main Level

Plan 31570GF: Adorable 3-Bedroom Cottage House Plan with Front and Side Porches - 1112 Sq Ft - Floor Plan - Main Level - Cottage, Country, Traditional, Vacation

2nd Floor

Plan 31570GF: Adorable 3-Bedroom Cottage House Plan with Front and Side Porches - 1112 Sq Ft - Floor Plan - 2nd Floor - Cottage, Country, Traditional, Vacation

Plan Details

  • You’ll find everything you need in just over 1,100 square feet in this thoughtfully designed cottage house plan.
  • Across the covered entry porch and through the front door, you’ll find a versatile living and dining space. The cozy kitchen is designed for efficiency.
  • Enjoy the privacy of a main-floor master bedroom with an adjacent full bath.
  • On the upper level, two additional bedrooms share a full bath.

What's Included

  • Cover Sheet: Shows typical notes and requirements.
  • Exterior Elevations: Shows the front, rear and sides of the home including exterior materials, details and measurement
  • Floor Plans: Shows the placement of walls and the dimensions for rooms, doors, windows, stairways, etc. for each floor
  • Foundation Plan: will include a basement, crawlspace or slab depending on what is available for that home plan. (Please refer to the home plan's details sheet to see what foundation options are available for a specific home plan.) The foundation plan details the layout and construction of the foundation.
  • Typical wall section
  • Typical stair section (if applicable)
  • Typical shelving and cabinet details

What's Not Included

  • Architectural or Engineering Stamp - handled locally if required
  • Site Plan - handled locally when required
  • Mechanical Drawings (location of heating and air equipment and duct work) - handled by your subcontractors
  • Plumbing Drawings (drawings showing the actual plumbing pipe sizes and locations) - handled by your subcontractors
  • Energy calculations - handled locally when required
  • Electrical Layout - handled by your builder and subcontractor
Starting at
Loading...
What's included?
Plan Set
Select...

Foundation
Select...

Options
Optional Add-Ons
+$0

Loading...
Price Match Guarantee
Cost to Build Report
Still deciding? Calculate the cost to build this house in your area.
Loading...
Customize This Plan
Need to make changes? We will get you a free price quote within 1 to 3 business days.
Cost to Furnish Report
Instant room-by-room estimates for your entire furniture & home decor plan, matched to your budget.
Loading...

Square Footage Breakdown

Total Heated Area

1,112 sq. ft.

1st Floor

609 sq. ft.

2nd Floor

503 sq. ft.

Porch, Front

107 sq. ft.

Porch, Combined

257 sq. ft.

Beds/Baths

Bedrooms

3

Full bathrooms

2

Foundation Type

Standard Foundations

Crawl

Exterior Walls

Exterior Walls

2x4

Dimensions

Width

33' 0"

Depth

20' 0"

Max Ridge Height

25' 0"

Ceiling Heights

First Floor

9'

Second Floor

8'

Roof Details

Primary Pitch

12 on 12

Framing Type

Stick

Architectural Style

Cottage

Plan Collections

Square Footage Breakdown

Total Heated Area

1,112 sq. ft.

1st Floor

609 sq. ft.

2nd Floor

503 sq. ft.

Porch, Front

107 sq. ft.

Porch, Combined

257 sq. ft.

Beds/Baths

Bedrooms

3

Full bathrooms

2

Foundation Type

Standard Foundations

Crawl

Exterior Walls

Exterior Walls

2x4

Dimensions

Width

33' 0"

Depth

20' 0"

Max Ridge Height

25' 0"

Ceiling Heights

First Floor

9'

Second Floor

8'

Roof Details

Primary Pitch

12 on 12

Framing Type

Stick

Plan Collections

* Please note that all sale prices and promotions featured on our website are subject to change without prior notice. While we strive to provide accurate and up-to-date information, occasional discrepancies may occur due to factors beyond our control. We encourage you to verify all details, including pricing and availability, before making any purchase. Exclusions or restrictions may apply to specific promotions. We reserve the right to modify or cancel any sale at our discretion. Thank you for your understanding and happy shopping!Let's go back to the top.