

Total Heated Area
566 sq. ft.
2nd Floor
566 sq. ft.
Porch, Combined
60 sq. ft.
Bedrooms
1
Full bathrooms
1
Half bathrooms
1
Standard Foundations
Slab
Exterior Walls
2x4
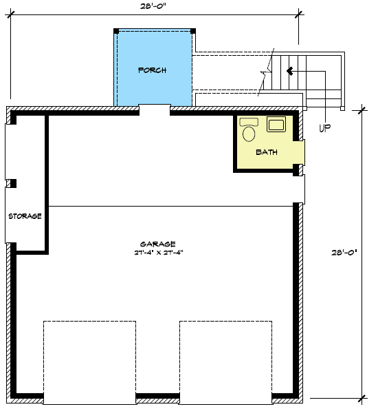
Width
28' 0"
Depth
28' 0"
Max Ridge Height
22' 0"
Type
Detached
Area
836 sq. ft.
Count
2 Cars
Entry Location
Front
First Floor
8'
Second Floor
8'
Total Heated Area
566 sq. ft.
2nd Floor
566 sq. ft.
Porch, Combined
60 sq. ft.
Bedrooms
1
Full bathrooms
1
Half bathrooms
1
Standard Foundations
Slab
Exterior Walls
2x4
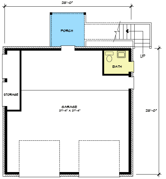
Width
28' 0"
Depth
28' 0"
Max Ridge Height
22' 0"
Type
Detached
Area
836 sq. ft.
Count
2 Cars
Entry Location
Front
First Floor
8'
Second Floor
8'