

Total Heated Area
4,913 sq. ft.
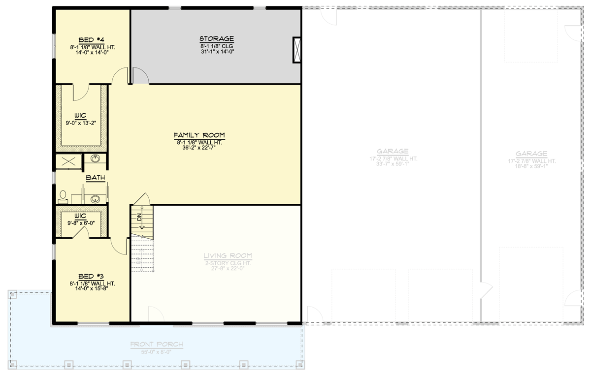
1st Floor
2,820 sq. ft.
2nd Floor
2,093 sq. ft.
Porch, Front
476 sq. ft.
Bedrooms
4
Full bathrooms
3
Half bathrooms
1
Standard Foundations
Crawl
Exterior Walls
2x6
Width
108' 0"
Depth
68' 0"
Max Ridge Height
27' 11"
Type
Attached
Area
3180 sq. ft.
Count
6 Cars
Entry Location
Front
First Floor
8'
Second Floor
8'
Primary Pitch
4 on 12
Framing Type
Truss
Total Heated Area
4,913 sq. ft.
1st Floor
2,820 sq. ft.
2nd Floor
2,093 sq. ft.
Porch, Front
476 sq. ft.
Bedrooms
4
Full bathrooms
3
Half bathrooms
1
Standard Foundations
Crawl
Exterior Walls
2x6
Width
108' 0"
Depth
68' 0"
Max Ridge Height
27' 11"
Type
Attached
Area
3180 sq. ft.
Count
6 Cars
Entry Location
Front
First Floor
8'
Second Floor
8'
Primary Pitch
4 on 12
Framing Type
Truss