

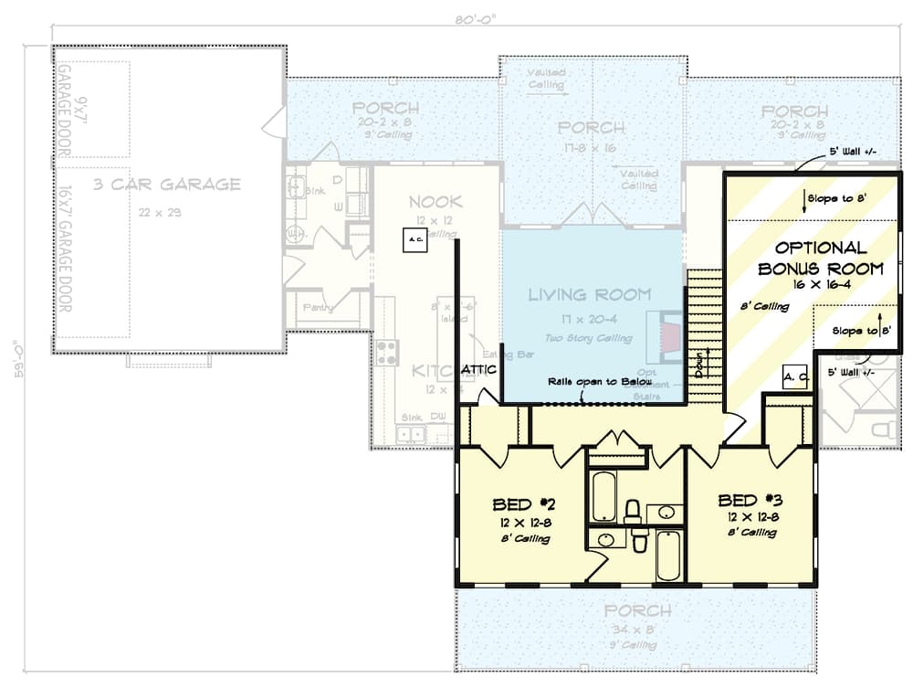
Total Heated Area
2,398 sq. ft.
1st Floor
1,818 sq. ft.
2nd Floor
580 sq. ft.
Bonus
334 sq. ft.
Porch, Front
272 sq. ft.
Porch, Rear
601 sq. ft.
Bedrooms
3 or 4
Full bathrooms
4
Half bathrooms
2
Standard Foundations
Slab
Exterior Walls
2x4
Optional Type(s)
2x6
Width
80' 0"
Depth
59' 0"
Max Ridge Height
30' 2"
Type
Attached
Area
638 sq. ft.
Count
3 Cars
Entry Location
Side
Primary Pitch
8 on 12
Secondary Pitch
8 on 12
Framing Type
Truss
Total Heated Area
2,398 sq. ft.
1st Floor
1,818 sq. ft.
2nd Floor
580 sq. ft.
Bonus
334 sq. ft.
Porch, Front
272 sq. ft.
Porch, Rear
601 sq. ft.
Bedrooms
3 or 4
Full bathrooms
4
Half bathrooms
2
Standard Foundations
Slab
Exterior Walls
2x4
Optional Type(s)
2x6
Width
80' 0"
Depth
59' 0"
Max Ridge Height
30' 2"
Type
Attached
Area
638 sq. ft.
Count
3 Cars
Entry Location
Side
Primary Pitch
8 on 12
Secondary Pitch
8 on 12
Framing Type
Truss