

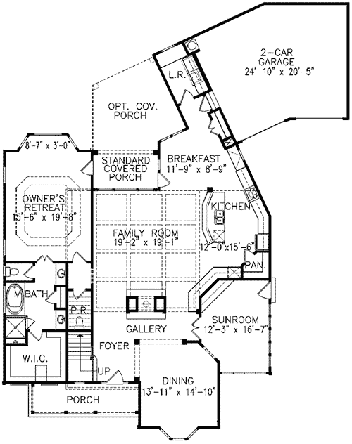
Total Heated Area
3,166 sq. ft.
1st Floor
2,175 sq. ft.
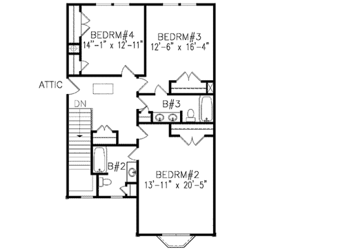
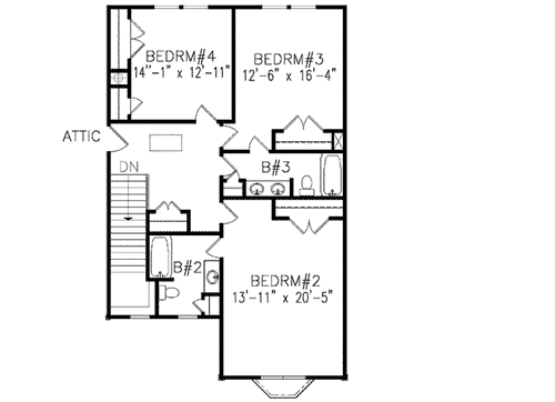
2nd Floor
991 sq. ft.
Bedrooms
4
Full bathrooms
3
Half bathrooms
1
Standard Foundations
Walkout
Exterior Walls
2x4
Optional Type(s)
2x6
Width
63' 0"
Depth
79' 8"
Max Ridge Height
26' 11"
Type
Attached
Area
540 sq. ft.
Count
2 Cars
Entry Location
Front
Framing Type
Stick
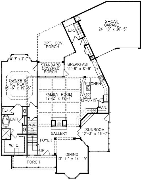
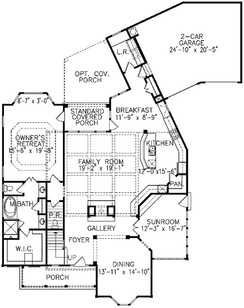
Total Heated Area
3,166 sq. ft.
1st Floor
2,175 sq. ft.
2nd Floor
991 sq. ft.
Bedrooms
4
Full bathrooms
3
Half bathrooms
1
Standard Foundations
Walkout
Exterior Walls
2x4
Optional Type(s)
2x6
Width
63' 0"
Depth
79' 8"
Max Ridge Height
26' 11"
Type
Attached
Area
540 sq. ft.
Count
2 Cars
Entry Location
Front
Framing Type
Stick