LogoLogo TaglineLogo Tagline
Loading...
Plan 32580WP

Classic Country Home Plan

Heated S.F.
3,543
Beds
4
Baths
3.5
Stories
2
Cars
2

Floor Plan

Plan 32580WP

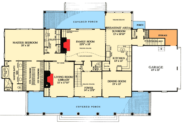
Main Level
Main Level
2nd Floor
2nd Floor

Plan 32580WP

M-F 9am-5pm EST |

1-203-761-8500

Main Level

Plan 32580WP: Classic Country Home Plan - Floor Plan - Main Level - Country, Southern

2nd Floor

Plan 32580WP: Classic Country Home Plan - Floor Plan - 2nd Floor - Country, Southern

Plan Details

  • With a wide front porch and metal roof, this Country home plan takes pride in its roots.
  • Formal rooms flank the foyer but the informal area in back is where your family will love to gather.
  • Windows on two sides and a sliding glass door keep the breakfast area and sunroom bright.
  • The spacious first floor master suite is easy to get to at the end of the day and the enormous walk-in closet gives you lots of storage.
  • On the upper floor, a delightful balcony overlook lets you see both the foyer and family room below.
  • Future rec space over the garage can be finished to suit your needs.
  • Related Plan: Get more room with house plan 32605WP.

What's Included

  • Front elevation rendering
  • Foundation
  • Dimensioned floor plans
  • Electrical plans
  • Cross section through house
  • All exterior elevations
  • Selected interior elevations
  • Door and window sizes
  • Fireplace, stair, molding and cabinet details
  • Roof plan
  • Exterior details

What's Not Included

  • Architectural or Engineering Stamp - handled locally if required
  • Site Plan - handled locally when required
  • Mechanical Drawings (location of heating and air equipment and duct work) - your subcontractors handle this
  • Plumbing Drawings (drawings showing the actual plumbing pipe sizes and locations) - your subcontractors handle this
  • Energy calculations - handled locally when required

Starting at

Loading...
Price Match Guarantee
What's included?

FORMAT & LICENSE

Choose an option

$0

Not sure what to choose?

Pointer link icon

FOUNDATION

Choose an option

+$0

OPTIONS

Choose Additional Options

+$0

Loading...

Modify this Plan

Receive a free modification quote within 3 business days.

Loading...

Start with a Cost Report

Calculate the cost to build & furnish your home.

Loading...
Loading...

Square Footage Breakdown

Total Heated Area

3,543 sq. ft.

1st Floor

2,449 sq. ft.

2nd Floor

1,094 sq. ft.

Bonus

409 sq. ft.

Beds/Baths

Bedrooms

4

Full bathrooms

3

Half bathrooms

1

Foundation Type

Standard Foundations

Crawl

Exterior Walls

Exterior Walls

2x4

Dimensions

Width

89' 0"

Depth

53' 10"

Max Ridge Height

32' 5"

Garage

Type

Attached

Area

529 sq. ft.

Count

2 Cars

Entry Location

Side

Ceiling Heights

First Floor

10'

Second Floor

9'

Roof Details

Framing Type

Stick

Architectural Style

Country

Plan Collections

Square Footage Breakdown

Total Heated Area

3,543 sq. ft.

1st Floor

2,449 sq. ft.

2nd Floor

1,094 sq. ft.

Bonus

409 sq. ft.

Beds/Baths

Bedrooms

4

Full bathrooms

3

Half bathrooms

1

Foundation Type

Standard Foundations

Crawl

Exterior Walls

Exterior Walls

2x4

Dimensions

Width

89' 0"

Depth

53' 10"

Max Ridge Height

32' 5"

Garage

Type

Attached

Area

529 sq. ft.

Count

2 Cars

Entry Location

Side

Ceiling Heights

First Floor

10'

Second Floor

9'

Roof Details

Framing Type

Stick

Architectural Style

Plan Collections

* Please note that all sale prices and promotions featured on our website are subject to change without prior notice. While we strive to provide accurate and up-to-date information, occasional discrepancies may occur due to factors beyond our control. We encourage you to verify all details, including pricing and availability, before making any purchase. Exclusions or restrictions may apply to specific promotions. We reserve the right to modify or cancel any sale at our discretion. Thank you for your understanding and happy shopping!Let's go back to the top.