

Total Heated Area
1,698 sq. ft.
1st Floor
1,698 sq. ft.
Basement Unfinished
1,698 sq. ft.
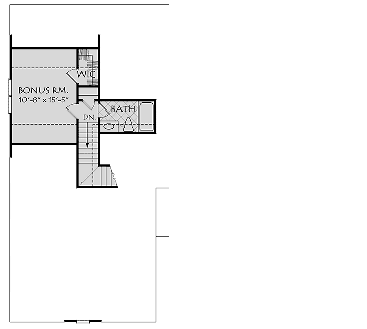
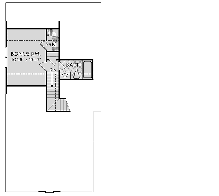
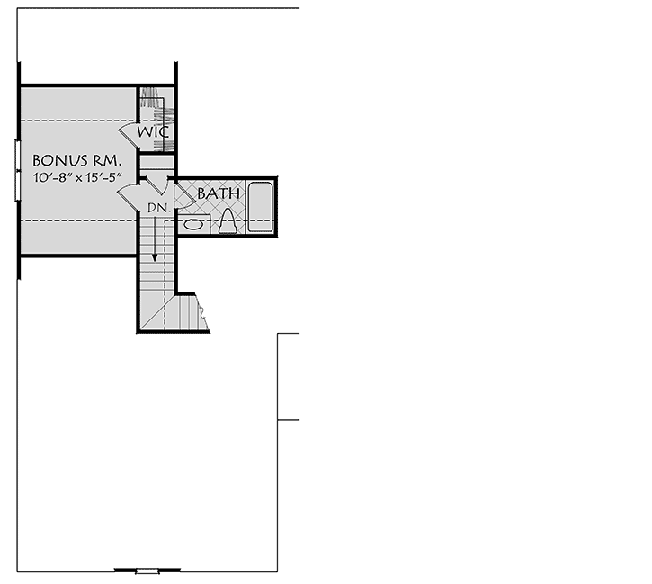
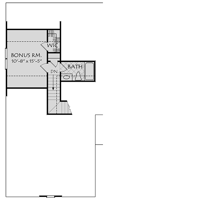
Bonus
276 sq. ft.
Bedrooms
3 or 4
Full bathrooms
2 or 3
Standard Foundations
Crawl, Slab, Walkout
Exterior Walls
2x4
Width
57' 0"
Depth
52' 0"
Max Ridge Height
24' 0"
Type
Attached
Area
528 sq. ft.
Count
2 Cars
Entry Location
Side
First Floor
10'
Second Floor
9'
Primary Pitch
10 on 12
Framing Type
Stick
Total Heated Area
1,698 sq. ft.
1st Floor
1,698 sq. ft.
Basement Unfinished
1,698 sq. ft.
Bonus
276 sq. ft.
Bedrooms
3 or 4
Full bathrooms
2 or 3
Standard Foundations
Crawl, Slab, Walkout
Exterior Walls
2x4
Width
57' 0"
Depth
52' 0"
Max Ridge Height
24' 0"
Type
Attached
Area
528 sq. ft.
Count
2 Cars
Entry Location
Side
First Floor
10'
Second Floor
9'
Primary Pitch
10 on 12
Framing Type
Stick