
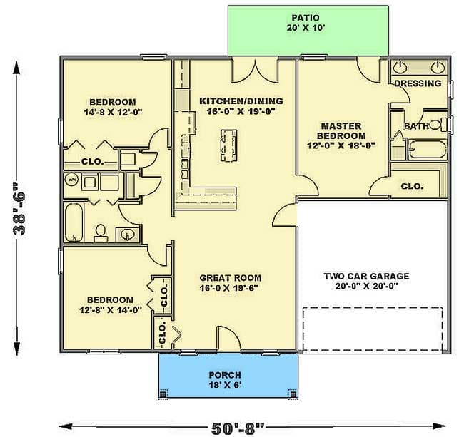
Total Heated Area
1,551 sq. ft.
1st Floor
1,551 sq. ft.
Porch, Front
108 sq. ft.
Bedrooms
3
Full bathrooms
2
Standard Foundations
Slab
Exterior Walls
2x6
Width
50' 8"
Depth
44' 6"
Max Ridge Height
20' 0"
Type
Attached
Area
400 sq. ft.
Count
2 Cars
Entry Location
Front
First Floor
8'
Primary Pitch
7 on 12
Framing Type
Truss
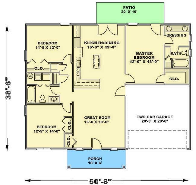
Total Heated Area
1,551 sq. ft.
1st Floor
1,551 sq. ft.
Porch, Front
108 sq. ft.
Bedrooms
3
Full bathrooms
2
Standard Foundations
Slab
Exterior Walls
2x6
Width
50' 8"
Depth
44' 6"
Max Ridge Height
20' 0"
Type
Attached
Area
400 sq. ft.
Count
2 Cars
Entry Location
Front
First Floor
8'
Primary Pitch
7 on 12
Framing Type
Truss