

Total Heated Area
3,171 sq. ft.
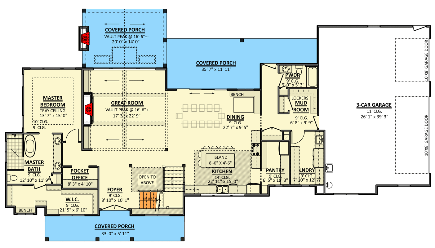
1st Floor
2,262 sq. ft.
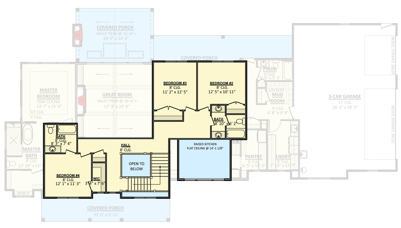
2nd Floor
909 sq. ft.
Basement Unfinished
2,130 sq. ft.
Porch, Front
207 sq. ft.
Porch, Rear
631 sq. ft.
Bedrooms
4
Full bathrooms
4
Standard Foundations
Basement
Exterior Walls
2x4
Optional Type(s)
2x6
Width
100' 8"
Depth
45' 0"
Max Ridge Height
29' 10"
Type
Attached
Area
1020 sq. ft.
Count
3 Cars
Entry Location
Side
First Floor
9'
Second Floor
8'
Room
Ceiling Type
Height
Rear Porch
Vaulted
16' 6''
Owner's Bedroom
Tray
10' 0''
Great Room
Vaulted
16' 6''
Primary Pitch
10 on 12
Secondary Pitch
8 on 12
Framing Type
Truss
Total Heated Area
3,171 sq. ft.
1st Floor
2,262 sq. ft.
2nd Floor
909 sq. ft.
Basement Unfinished
2,130 sq. ft.
Porch, Front
207 sq. ft.
Porch, Rear
631 sq. ft.
Bedrooms
4
Full bathrooms
4
Standard Foundations
Basement
Exterior Walls
2x4
Optional Type(s)
2x6
Width
100' 8"
Depth
45' 0"
Max Ridge Height
29' 10"
Type
Attached
Area
1020 sq. ft.
Count
3 Cars
Entry Location
Side
First Floor
9'
Second Floor
8'
Room
Ceiling Type
Height
Rear Porch
Vaulted
16' 6''
Owner's Bedroom
Tray
10' 0''
Great Room
Vaulted
16' 6''
Primary Pitch
10 on 12
Secondary Pitch
8 on 12
Framing Type
Truss