

Starting at
Ready to Get Started?
Select your plan set options before checkout.
Total Heated Area
4,076 sq. ft.
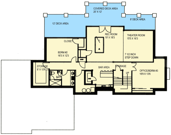
Lower Level
2,034 sq. ft.
1st Floor
2,042 sq. ft.
Bedrooms
2 or 3
Full bathrooms
3
Half bathrooms
1
Standard Foundations
Walkout
Exterior Walls
2x6
Width
88' 0"
Depth
57' 0"
Max Ridge Height
27' 6"
Type
Attached
Area
1091 sq. ft.
Count
3 Cars
Entry Location
Front
First Floor
9'
Primary Pitch
N on N
Secondary Pitch
N on N
Framing Type
Truss
Total Heated Area
4,076 sq. ft.
Lower Level
2,034 sq. ft.
1st Floor
2,042 sq. ft.
Bedrooms
2 or 3
Full bathrooms
3
Half bathrooms
1
Standard Foundations
Walkout
Exterior Walls
2x6
Width
88' 0"
Depth
57' 0"
Max Ridge Height
27' 6"
Type
Attached
Area
1091 sq. ft.
Count
3 Cars
Entry Location
Front
First Floor
9'
Primary Pitch
N on N
Secondary Pitch
N on N
Framing Type
Truss