Exclusive



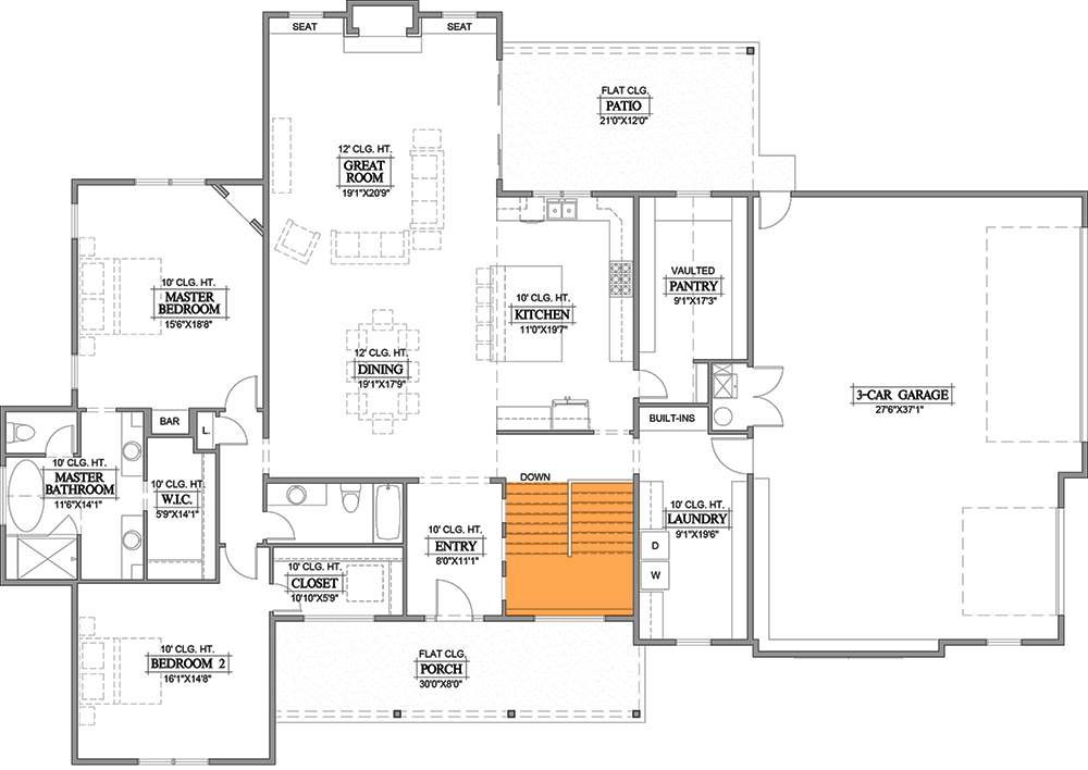
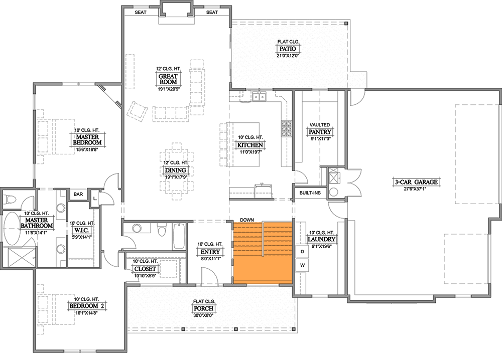
Total Heated Area
2,688 sq. ft.
1st Floor
2,688 sq. ft.
Basement Unfinished
596 sq. ft.
Optional Lower Level
2,092 sq. ft.
Porch, Front
241 sq. ft.
Porch, Rear
252 sq. ft.
Bedrooms
2, 3, or 4
Full bathrooms
2 or 3
Standard Foundations
Crawl
Exterior Walls
2x6
Width
91' 0"
Depth
64' 0"
Type
Attached
Area
1052 sq. ft.
Count
3 Cars
Entry Location
Side
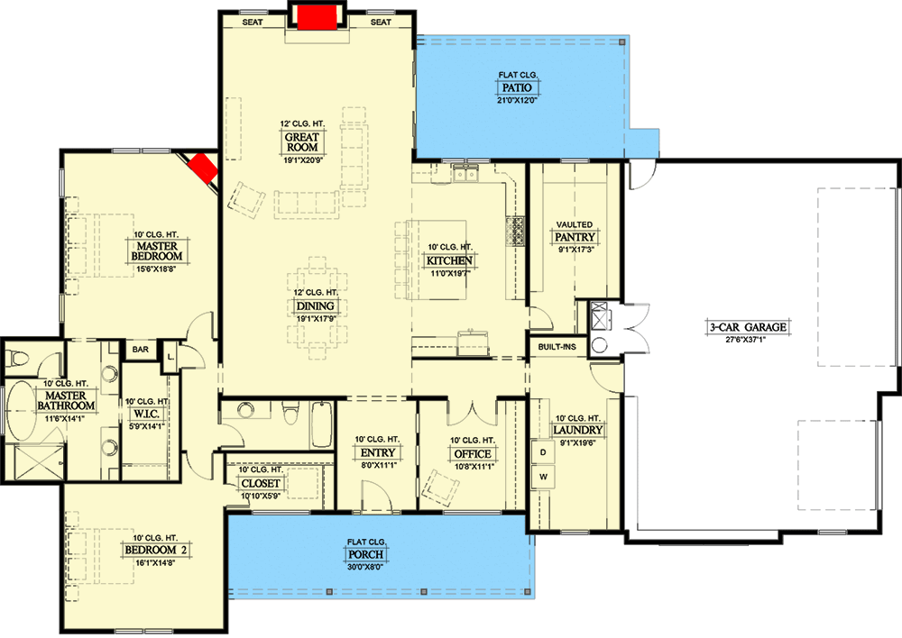
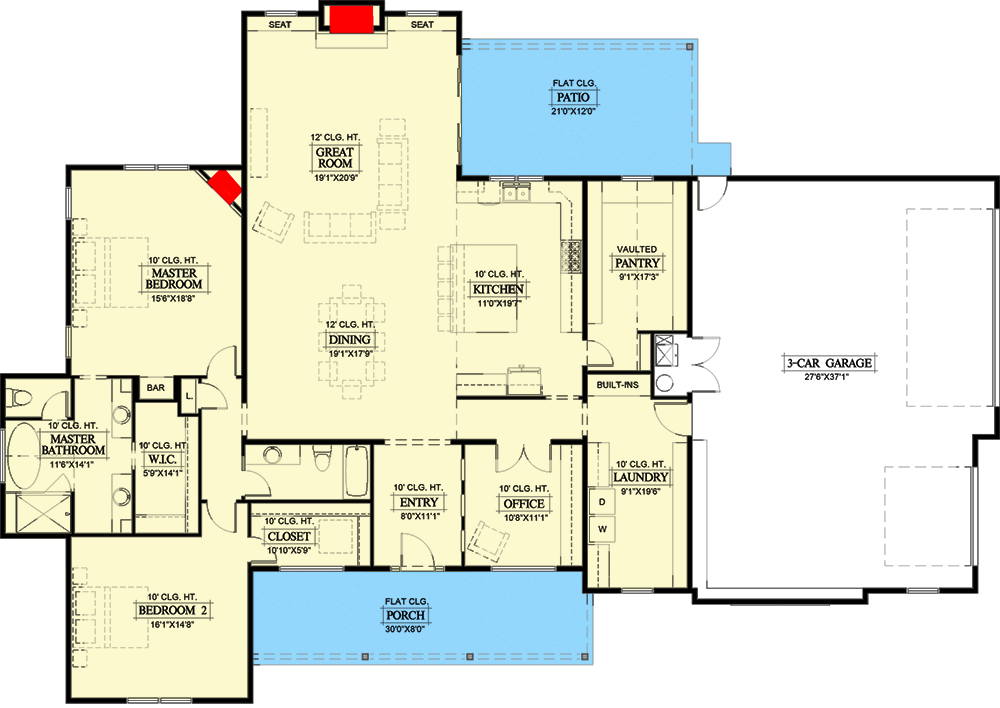
Total Heated Area
2,688 sq. ft.
1st Floor
2,688 sq. ft.
Basement Unfinished
596 sq. ft.
Optional Lower Level
2,092 sq. ft.
Porch, Front
241 sq. ft.
Porch, Rear
252 sq. ft.
Bedrooms
2, 3, or 4
Full bathrooms
2 or 3
Standard Foundations
Crawl
Exterior Walls
2x6
Width
91' 0"
Depth
64' 0"
Type
Attached
Area
1052 sq. ft.
Count
3 Cars
Entry Location
Side