LogoLogo TaglineLogo Tagline
Loading...
Plan 17597LV

Exquisite Stone Design

Heated S.F.
4,264
Beds
3 - 4
Baths
4
Stories
1
Cars
2

Floor Plan

Plan 17597LV

Basement
Basement
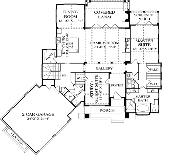
Main Level
Main Level

Plan 17597LV

M-F 9am-5pm EST |

1-203-761-8500

Basement

Plan 17597LV: Exquisite Stone Design - Floor Plan - Basement - Cottage, Craftsman, Mountain

Main Level

Plan 17597LV: Exquisite Stone Design - Floor Plan - Main Level - Cottage, Craftsman, Mountain

Plan Details

  • This home plan is perfect for a wooded lot or a spot with great views.
  • Stone and shake gives this home great curb appeal.
  • The open floor plan and the covered lanai with triple sets of french doors are great for entertaining.
  • The master suite is complete with master bath and a private screened porch.
  • The basement has a full recreation room with bar and a media room for movie night.

What's Included

  • Dimensioned and detailed Foundation plan (type as listed on home plan description)
  • Dimensioned and detailed floor plans
  • Framing plans
  • Complete front, side and rear elevations
  • Roof plan
  • Typical building sections (as deemed necessary for construction)
  • Typical foundation details, wall sections, and cornice details necessary for construction
  • Separate electrical plan (may be shown on floor plans in some cases)

What's Not Included

  • Architectural or Engineering Stamp - handled locally if required
  • Site Plan - handled locally when required
  • Mechanical Drawings (location of heating and air equipment and duct work) - your subcontractors handle this
  • Plumbing Drawings (drawings showing the actual plumbing pipe sizes and locations) - your subcontractors handle this
  • Energy calculations - handled locally when required

Starting at

Loading...
Price Match Guarantee
What's included?

FORMAT & LICENSE

Choose an option

$0

Not sure what to choose?

Pointer link icon

FOUNDATION

Choose an option

+$0

OPTIONS

Choose Additional Options

+$0

Loading...

Modify this Plan

Receive a free modification quote within 3 business days.

Loading...

Start with a Cost Report

Calculate the cost to build & furnish your home.

Loading...
Loading...

Square Footage Breakdown

Total Heated Area

4,264 sq. ft.

Lower Level

1,854 sq. ft.

1st Floor

2,410 sq. ft.

Beds/Baths

Bedrooms

3 or 4

Full bathrooms

4

Foundation Type

Standard Foundations

Basement, Walkout

Exterior Walls

Exterior Walls

2x4

Dimensions

Width

82' 5"

Depth

78' 11"

Garage

Type

Attached

Area

750 sq. ft.

Count

2 Cars

Entry Location

Courtyard

Ceiling Heights

First Floor

10'

Architectural Style

Cottage

Plan Collections

Square Footage Breakdown

Total Heated Area

4,264 sq. ft.

Lower Level

1,854 sq. ft.

1st Floor

2,410 sq. ft.

Beds/Baths

Bedrooms

3 or 4

Full bathrooms

4

Foundation Type

Standard Foundations

Basement, Walkout

Exterior Walls

Exterior Walls

2x4

Dimensions

Width

82' 5"

Depth

78' 11"

Garage

Type

Attached

Area

750 sq. ft.

Count

2 Cars

Entry Location

Courtyard

Ceiling Heights

First Floor

10'

Architectural Style

Plan Collections

* Please note that all sale prices and promotions featured on our website are subject to change without prior notice. While we strive to provide accurate and up-to-date information, occasional discrepancies may occur due to factors beyond our control. We encourage you to verify all details, including pricing and availability, before making any purchase. Exclusions or restrictions may apply to specific promotions. We reserve the right to modify or cancel any sale at our discretion. Thank you for your understanding and happy shopping!Let's go back to the top.