LogoLogo TaglineLogo Tagline
Loading...
Plan 52037HZ

Farmhouse House Plan with 3 Beds, 2 Baths, and Inviting Porches

Heated S.F.
1,523
Beds
3
Baths
2
Stories
1
Cars
2

Floor Plan

Plan 52037HZ

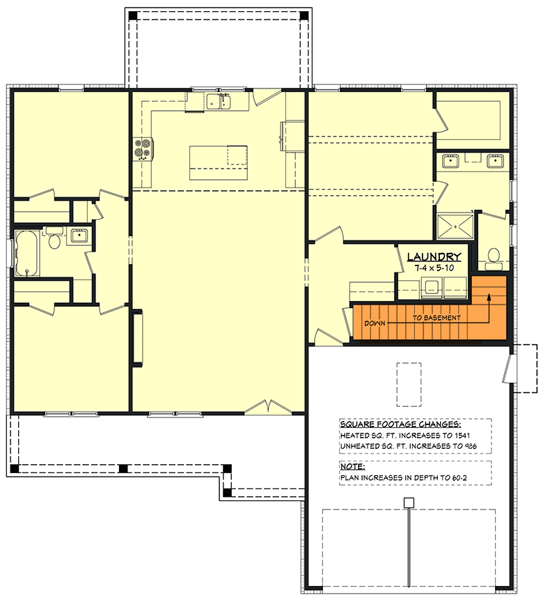
Main Level
Main Level
Basement Stairs Location
Basement Stairs Location

Plan 52037HZ

M-F 9am-5pm EST |

1-203-761-8500

Main Level

Plan 52037HZ: Farmhouse House Plan with 3 Beds, 2 Baths, and Inviting Porches - Floor Plan - Main Level - Country, Farmhouse, Southern, Traditional

Basement Stairs Location

Plan 52037HZ: Farmhouse House Plan with 3 Beds, 2 Baths, and Inviting Porches - Floor Plan - Basement Stairs Location - Country, Farmhouse, Southern, Traditional

Plan Details

  • This 1,523 sq ft Farmhouse House Plan offers 3 bedrooms, 2 baths, and an attached 2-car garage spanning 545 sq ft, all wrapped in a charming Country Farmhouse style.
  • Step inside through the front door into a welcoming entry featuring practical mudroom lockers, providing a seamless transition from the attached garage into the heart of the home.
  • The open-concept layout flows effortlessly from the Great Room with its electric fireplace into the spacious Dining area, both boasting 10-foot ceilings, and then into the well-appointed kitchen with an island eating bar and pantry.
  • The private primary bedroom suite is thoughtfully situated on the main level, distinct from two secondary bedrooms which share a full bath on the opposite side of the home, ensuring peace and quiet.
  • Enjoy outdoor living on the generous 205 sq ft front porch, perfect for morning coffee, or relax on the 149 sq ft rear porch, ideal for evening gatherings.

What's Included

  • Cover Sheet with abbreviations, rendering, sheet index
  • Foundation plan with details
  • Detailed floor plan (includes window sizes, ceiling joist directions, plumbing fixture locations, etc.)
  • Four exterior views (front, rear, right, left)
  • Roof plan (birds eye view of roof)
  • Building section
  • Kitchen cabinet views
  • Electrical plan
  • Span charts and other misc details

View Sample Plan

What's Not Included

  • Architectural or Engineering Stamp - handled locally if required
  • Site Plan - handled locally when required
  • Mechanical Drawings (location of heating and air equipment and duct work) - your subcontractors handle this
  • Plumbing Drawings (drawings showing the actual plumbing pipe sizes and locations) - your subcontractors handle this
  • REScheck or other energy related calculations are NOT included.
  • Wind load or seismic calculations are NOT included. 
  • Framing plans or beam sizes are NOT included.
  • Other specific drawings that your local permit office may require

Starting at

Loading...
Price Match Guarantee
What's included?

FORMAT & LICENSE

Choose an option

$0

Not sure what to choose?

Pointer link icon

FOUNDATION

Choose an option

+$0

OPTIONS

Choose Additional Options

+$0

Loading...

Modify this Plan

Receive a free modification quote within 3 business days.

Loading...

Start with a Cost Report

Calculate the cost to build & furnish your home.

Loading...
Loading...

Square Footage Breakdown

Total Heated Area

1,523 sq. ft.

1st Floor

1,523 sq. ft.

Porch, Front

205 sq. ft.

Porch, Rear

149 sq. ft.

Storage

11 sq. ft.

Beds/Baths

Bedrooms

3

Full bathrooms

2

Foundation Type

Standard Foundations

Slab

Exterior Walls

Exterior Walls

2x4

Optional Type(s)

2x6

Dimensions

Width

52' 4"

Depth

55' 10"

Max Ridge Height

24' 0"

Garage

Type

Attached

Area

545 sq. ft.

Count

2 Cars

Entry Location

Front

Ceiling Heights

First Floor

9'

Roof Details

Primary Pitch

8 on 12

Secondary Pitch

9 on 12

Framing Type

Stick

Architectural Style

Country

Square Footage Breakdown

Total Heated Area

1,523 sq. ft.

1st Floor

1,523 sq. ft.

Porch, Front

205 sq. ft.

Porch, Rear

149 sq. ft.

Storage

11 sq. ft.

Beds/Baths

Bedrooms

3

Full bathrooms

2

Foundation Type

Standard Foundations

Slab

Exterior Walls

Exterior Walls

2x4

Optional Type(s)

2x6

Dimensions

Width

52' 4"

Depth

55' 10"

Max Ridge Height

24' 0"

Garage

Type

Attached

Area

545 sq. ft.

Count

2 Cars

Entry Location

Front

Ceiling Heights

First Floor

9'

Roof Details

Primary Pitch

8 on 12

Secondary Pitch

9 on 12

Framing Type

Stick

* Please note that all sale prices and promotions featured on our website are subject to change without prior notice. While we strive to provide accurate and up-to-date information, occasional discrepancies may occur due to factors beyond our control. We encourage you to verify all details, including pricing and availability, before making any purchase. Exclusions or restrictions may apply to specific promotions. We reserve the right to modify or cancel any sale at our discretion. Thank you for your understanding and happy shopping!Let's go back to the top.