LogoLogo TaglineLogo Tagline
Loading...

Cost to Build Report for Plan 850023PKE

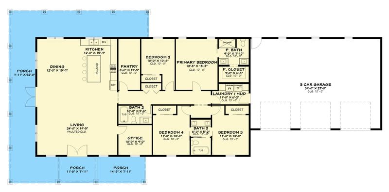
Four Bedroom Barndominium House Plan with Expansive Three Car Garage

Main Level

Plan 850023PKE: Four Bedroom Barndominium House Plan with Expansive Three Car Garage - Floor Plan - Main Level - Barndominium, Modern Farmhouse

Main Level

View Cost to Build Report Demo
A Cost to Build Report can be customized to help you estimate your construction costs.
The cost to build report provides a cost estimate based on location, home complexity, and features. After receiving the report (please allow 24 - 48 hours for delivery), you can customize it to align with your preferred building materials and plan features.
Cost to Build Reports are customizable and available for download for 60 days after delivery.
To receive your free modification quote within 1 to 3 business days, please fill out the form below and be as descriptive as possible.
Material Quality
Better (Recommended)

Foundation
Select...

Build Lot Postal Code