LogoLogo TaglineLogo Tagline
Loading...
Plan 680060VR

Garage with RV Storage and Storage Loft and Nearly 1600 Square Feet of Parking Space

Heated S.F.
0
Beds
0
Baths
0
Stories
2
Cars
2- 3

Floor Plan

Plan 680060VR

Main Level
Main Level
2nd Floor
2nd Floor

Plan 680060VR

M-F 9am-5pm EST |

1-203-761-8500

Main Level

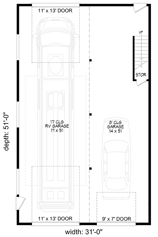
Plan 680060VR: Garage with RV Storage and Storage Loft and Nearly 1600 Square Feet of Parking Space - Floor Plan - Main Level - Northwest, Traditional

2nd Floor

Plan 680060VR: Garage with RV Storage and Storage Loft and Nearly 1600 Square Feet of Parking Space - Floor Plan - 2nd Floor - Northwest, Traditional

Plan Details

  • A big lift-friendly RV bay with 7' ceilings has 11' by 13' overhead doors located in front and back give you drive-through ability. To the right, a 9' by 7' overhead door gives you parking for a non-RV vehicle. Combined, the garage plan gets you 1,581 square feet of parking space.
  • Stairs line the right side and rise from the back towards the front and deposit you in a large storage loft running the full depth of the garage.
  • Related Plan: Get a smaller version with garage plan 68514VR (1,354 sq. ft. garage).

What's Included

  • Floor Plans: House plan drawings indicating dimensions for construction
  • Roof Plan: Drawings indicating roof slopes and unique conditions
  • Exterior Elevations: Drawings showing appearance and the types of materials used for the exterior finish and trim
  • Building Sections: Drawings cut through important locations in the structure
  • Construction Details: Drawings showing specific construction of building elements at a large scale
  • Kitchen and bath elevations (excluded on garage plans)
  • Electrical Plans: Basic electrical layout (suggested locations of fixtures, switches and outlets)
  • Foundation Plan: Dimensioned drawings describing specific foundation conditions for the structure
  • Building license: A single-use license for construction at one location only

View Sample Plan

What's Not Included

  • Architectural or Engineering Stamp - handled locally if required
  • Site Plan - handled locally when required
  • Mechanical Drawings (location of heating and air equipment and duct work) - your subcontractors handle this
  • Plumbing Drawings (drawings showing the actual plumbing pipe sizes and locations) - your subcontractors handle this
  • Energy calculations - handled locally when required

Starting at

Loading...
Price Match Guarantee
What's included?

FORMAT & LICENSE

Choose an option

$0

Not sure what to choose?

Pointer link icon

FOUNDATION

Choose an option

+$0

OPTIONS

Choose Additional Options

+$0

Loading...

Modify this Plan

Receive a free modification quote within 3 business days.

Loading...

Start with a Cost Report

Calculate the cost to build & furnish your home.

Loading...
Loading...

Square Footage Breakdown

Total Heated Area

0 sq. ft.

Bonus

733 sq. ft.

Beds/Baths

Bedrooms

0

Foundation Type

Standard Foundations

Slab

Exterior Walls

Exterior Walls

2x6

Dimensions

Width

31' 0"

Depth

51' 0"

Max Ridge Height

25' 6"

Garage

Type

Detached, RV Garage

Area

1581 sq. ft.

Count

2 or 3 Cars

Entry Location

Front, Rear

Roof Details

Primary Pitch

6 on 12

Framing Type

Truss

Architectural Style

Northwest

Special Features

Square Footage Breakdown

Total Heated Area

0 sq. ft.

Bonus

733 sq. ft.

Beds/Baths

Bedrooms

0

Foundation Type

Standard Foundations

Slab

Exterior Walls

Exterior Walls

2x6

Dimensions

Width

31' 0"

Depth

51' 0"

Max Ridge Height

25' 6"

Garage

Type

Detached, RV Garage

Area

1581 sq. ft.

Count

2 or 3 Cars

Entry Location

Front, Rear

Roof Details

Primary Pitch

6 on 12

Framing Type

Truss

Architectural Style

Special Features

* Please note that all sale prices and promotions featured on our website are subject to change without prior notice. While we strive to provide accurate and up-to-date information, occasional discrepancies may occur due to factors beyond our control. We encourage you to verify all details, including pricing and availability, before making any purchase. Exclusions or restrictions may apply to specific promotions. We reserve the right to modify or cancel any sale at our discretion. Thank you for your understanding and happy shopping!Let's go back to the top.