LogoLogo TaglineLogo Tagline
Loading...
Plan 32556WP

Gazebo Porch Grandeur

Heated S.F.
3,359
Beds
4
Baths
3.5
Stories
2
Cars
2

Floor Plan

Plan 32556WP

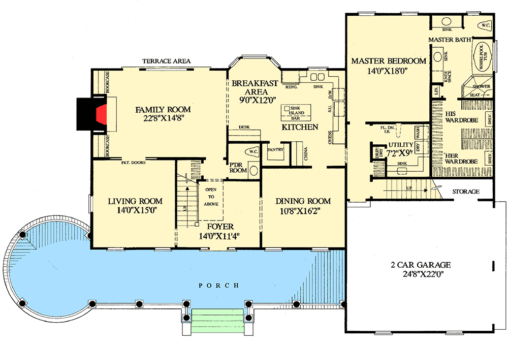
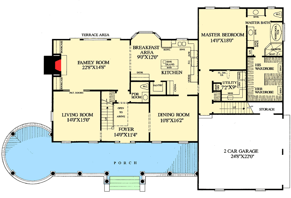
Main Level
Main Level
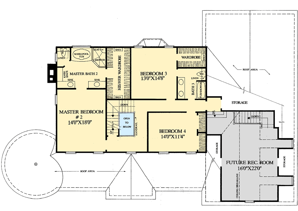
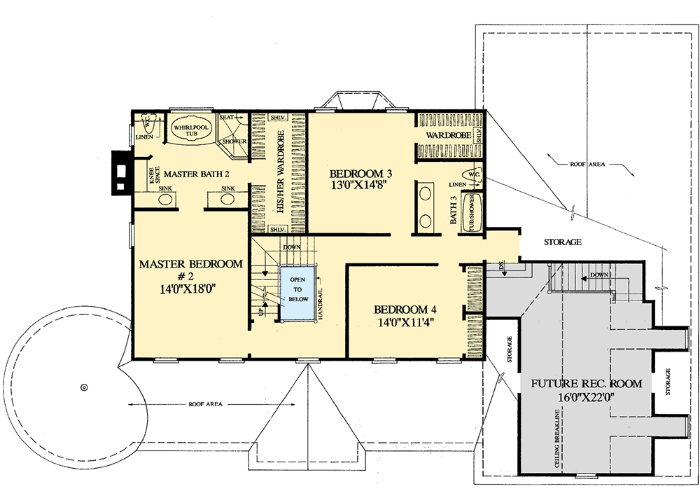
2nd Floor
2nd Floor

Plan 32556WP

M-F 9am-5pm EST |

1-203-761-8500

Main Level

Plan 32556WP: Gazebo Porch Grandeur - Floor Plan - Main Level - Country, Farmhouse, Southern, Southern Traditional, Traditional

2nd Floor

Plan 32556WP: Gazebo Porch Grandeur - Floor Plan - 2nd Floor - Country, Farmhouse, Southern, Southern Traditional, Traditional

Plan Details

  • This grand home plan has a fantastic front porch with a gazebo integrated into it giving you a great place to enjoy the views.
  • There are two master suites to this home, one on each floor, as well as two additional bedrooms.
  • The kitchen opens to the breakfast room with bay windows bringing great natural light to this space.
  • The family room is large and has a fireplace flanked by built-ins. This room in turn is open to the living room. Or not. With pocket doors, you get to choose.
  • The dining room is just off the 2-story foyer and is conveniently located near the kitchen making serving guests a breeze.
  • A separate stair by the garage entry leads to future space above the garage. Build it out now or later.

What's Included

  • Front elevation rendering
  • Foundation
  • Dimensioned floor plans
  • Electrical plans
  • Cross section through house
  • All exterior elevations
  • Selected interior elevations
  • Door and window sizes
  • Fireplace, stair, molding and cabinet details
  • Roof plan
  • Exterior details

What's Not Included

  • Architectural or Engineering Stamp - handled locally if required
  • Site Plan - handled locally when required
  • Mechanical Drawings (location of heating and air equipment and duct work) - your subcontractors handle this
  • Plumbing Drawings (drawings showing the actual plumbing pipe sizes and locations) - your subcontractors handle this
  • Energy calculations - handled locally when required
Starting at
Loading...
What's included?
Plan Set
Select...

Foundation
Select...

Options
Optional Add-Ons
+$0

Loading...
Price Match Guarantee
Cost to Build Report
Still deciding? Calculate the cost to build this house in your area.
Loading...
Customize This Plan
Need to make changes? We will get you a free price quote within 1 to 3 business days.
Cost to Furnish Report
Instant room-by-room estimates for your entire furniture & home decor plan, matched to your budget.
Loading...

Square Footage Breakdown

Total Heated Area

3,359 sq. ft.

1st Floor

2,099 sq. ft.

2nd Floor

1,260 sq. ft.

Bonus

494 sq. ft.

Beds/Baths

Bedrooms

4

Full bathrooms

3

Half bathrooms

1

Foundation Type

Standard Foundations

Crawl

Exterior Walls

Exterior Walls

2x4

Dimensions

Width

68' 4"

Depth

54' 0"

Max Ridge Height

36' 0"

Garage

Type

Attached

Area

543 sq. ft.

Count

2 Cars

Entry Location

Side

Ceiling Heights

First Floor

10'

Second Floor

9'

Roof Details

Framing Type

Stick

Architectural Style

Country

Square Footage Breakdown

Total Heated Area

3,359 sq. ft.

1st Floor

2,099 sq. ft.

2nd Floor

1,260 sq. ft.

Bonus

494 sq. ft.

Beds/Baths

Bedrooms

4

Full bathrooms

3

Half bathrooms

1

Foundation Type

Standard Foundations

Crawl

Exterior Walls

Exterior Walls

2x4

Dimensions

Width

68' 4"

Depth

54' 0"

Max Ridge Height

36' 0"

Garage

Type

Attached

Area

543 sq. ft.

Count

2 Cars

Entry Location

Side

Ceiling Heights

First Floor

10'

Second Floor

9'

Roof Details

Framing Type

Stick

* Please note that all sale prices and promotions featured on our website are subject to change without prior notice. While we strive to provide accurate and up-to-date information, occasional discrepancies may occur due to factors beyond our control. We encourage you to verify all details, including pricing and availability, before making any purchase. Exclusions or restrictions may apply to specific promotions. We reserve the right to modify or cancel any sale at our discretion. Thank you for your understanding and happy shopping!Let's go back to the top.