

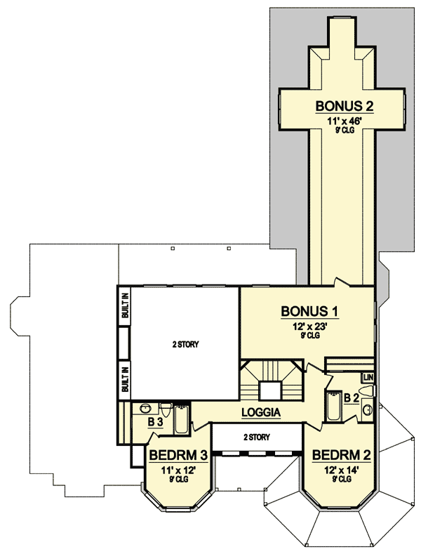
Total Heated Area
3,049 sq. ft.
1st Floor
2,423 sq. ft.
2nd Floor
626 sq. ft.
Bonus
879 sq. ft.
Bedrooms
3
Full bathrooms
3
Half bathrooms
1
Standard Foundations
Slab
Exterior Walls
2x4
Width
69' 0"
Depth
92' 0"
Max Ridge Height
35' 0"
Type
Attached
Area
835 sq. ft.
Count
3 Cars
Entry Location
Side
First Floor
9'
Second Floor
9'
Total Heated Area
3,049 sq. ft.
1st Floor
2,423 sq. ft.
2nd Floor
626 sq. ft.
Bonus
879 sq. ft.
Bedrooms
3
Full bathrooms
3
Half bathrooms
1
Standard Foundations
Slab
Exterior Walls
2x4
Width
69' 0"
Depth
92' 0"
Max Ridge Height
35' 0"
Type
Attached
Area
835 sq. ft.
Count
3 Cars
Entry Location
Side
First Floor
9'
Second Floor
9'