

Total Heated Area
3,618 sq. ft.
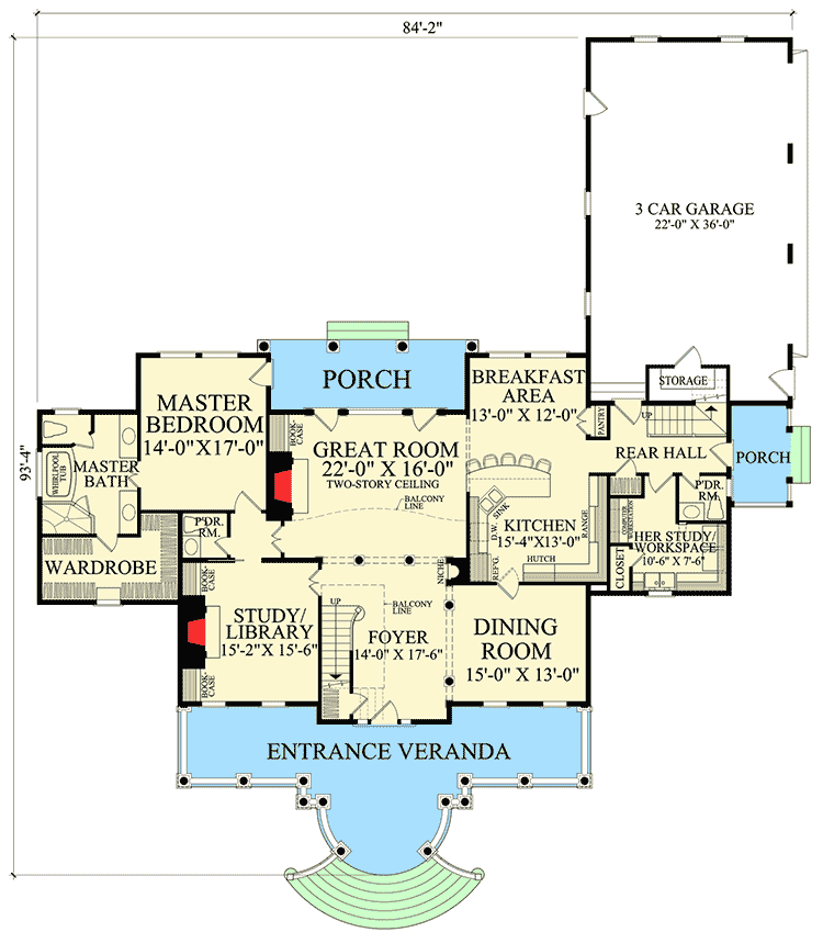
1st Floor
2,411 sq. ft.
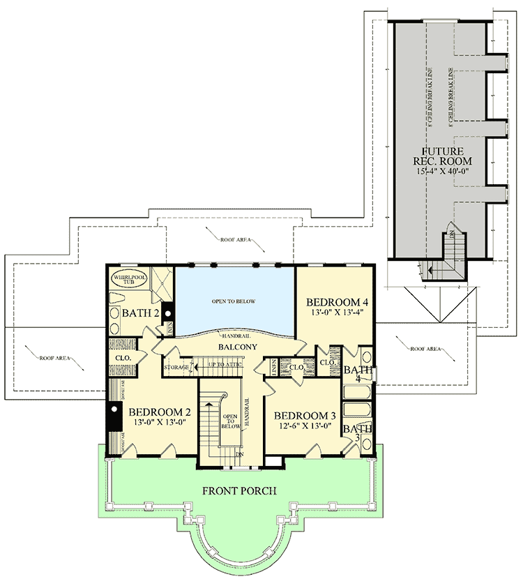
2nd Floor
1,207 sq. ft.
Porch, Front
691 sq. ft.
Bedrooms
4
Full bathrooms
4
Half bathrooms
2
Standard Foundations
Crawl
Exterior Walls
2x6
Width
84' 2"
Depth
93' 4"
Max Ridge Height
32' 0"
Type
Attached
Area
792 sq. ft.
Count
3 Cars
Entry Location
Side
First Floor
10'
Framing Type
Stick
Total Heated Area
3,618 sq. ft.
1st Floor
2,411 sq. ft.
2nd Floor
1,207 sq. ft.
Porch, Front
691 sq. ft.
Bedrooms
4
Full bathrooms
4
Half bathrooms
2
Standard Foundations
Crawl
Exterior Walls
2x6
Width
84' 2"
Depth
93' 4"
Max Ridge Height
32' 0"
Type
Attached
Area
792 sq. ft.
Count
3 Cars
Entry Location
Side
First Floor
10'
Framing Type
Stick