


Total Heated Area
8,817 sq. ft.
Lower Level
2,883 sq. ft.
1st Floor
4,123 sq. ft.
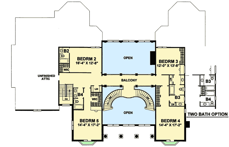
2nd Floor
1,811 sq. ft.
Bedrooms
5
Full bathrooms
4 or 5
Half bathrooms
2
Standard Foundations
Basement
Exterior Walls
2x6
Width
99' 4"
Depth
74' 0"
Max Ridge Height
35' 6"
Type
Attached
Area
1085 sq. ft.
Count
3 Cars
Entry Location
Side
First Floor
10'
Second Floor
9'
Total Heated Area
8,817 sq. ft.
Lower Level
2,883 sq. ft.
1st Floor
4,123 sq. ft.
2nd Floor
1,811 sq. ft.
Bedrooms
5
Full bathrooms
4 or 5
Half bathrooms
2
Standard Foundations
Basement
Exterior Walls
2x6
Width
99' 4"
Depth
74' 0"
Max Ridge Height
35' 6"
Type
Attached
Area
1085 sq. ft.
Count
3 Cars
Entry Location
Side
First Floor
10'
Second Floor
9'