


Total Heated Area
1,282 sq. ft.
1st Floor
1,282 sq. ft.
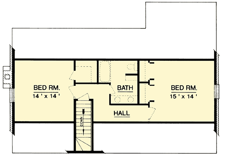
Bonus
644 sq. ft.
Porch, Front
48 sq. ft.
Storage
54 sq. ft.
Bedrooms
2, 3, or 4
Full bathrooms
1 or 2
Standard Foundations
Crawl
Exterior Walls
2x6
Width
46' 0"
Depth
34' 0"
Max Ridge Height
24' 0"
First Floor
8'
Primary Pitch
12 on 12
Framing Type
Stick
Total Heated Area
1,282 sq. ft.
1st Floor
1,282 sq. ft.
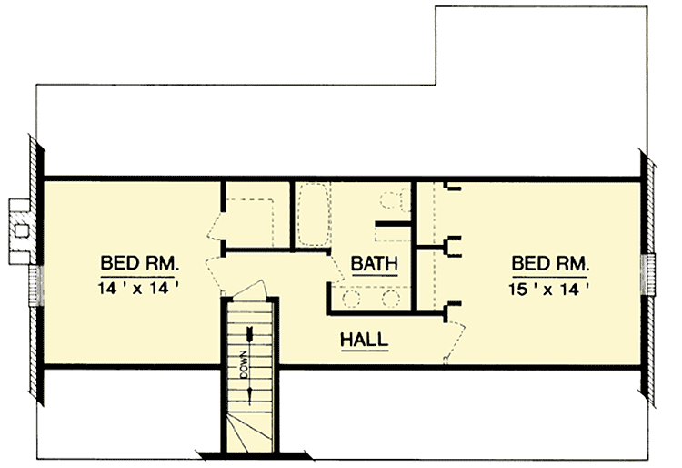
Bonus
644 sq. ft.
Porch, Front
48 sq. ft.
Storage
54 sq. ft.
Bedrooms
2, 3, or 4
Full bathrooms
1 or 2
Standard Foundations
Crawl
Exterior Walls
2x6
Width
46' 0"
Depth
34' 0"
Max Ridge Height
24' 0"
First Floor
8'
Primary Pitch
12 on 12
Framing Type
Stick