LogoLogo TaglineLogo Tagline
Loading...
Plan 32598WP

L-Shaped Cape Cod Home Plan

Heated S.F.
1,866
Beds
3
Baths
2.5
Stories
2
Cars
2

Floor Plan

Plan 32598WP

Main Level
Main Level
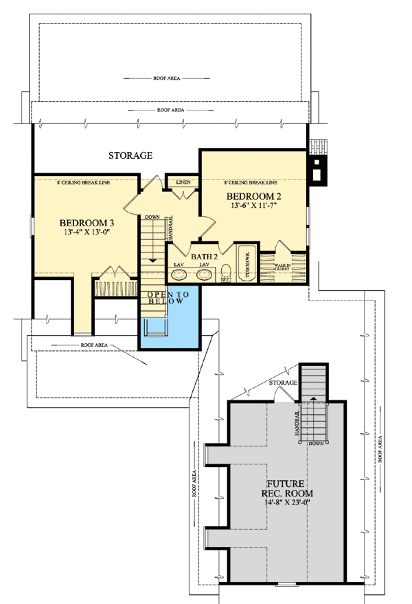
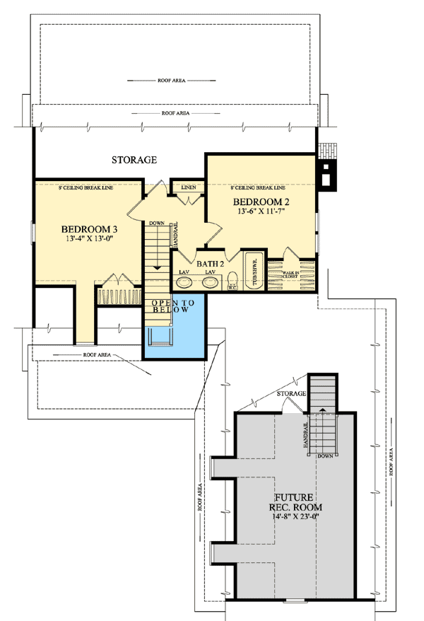
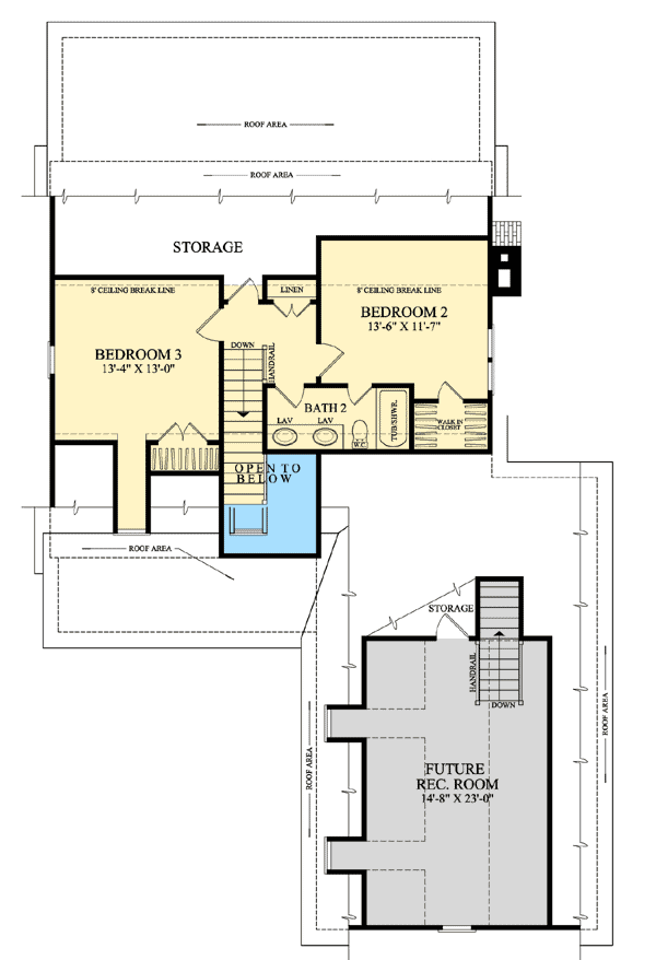
2nd Floor
2nd Floor

Plan 32598WP

M-F 9am-5pm EST |

1-203-761-8500

Main Level

Plan 32598WP: L-Shaped Cape Cod Home Plan - Floor Plan - Main Level - Cape Cod, Traditional

2nd Floor

Plan 32598WP: L-Shaped Cape Cod Home Plan - Floor Plan - 2nd Floor - Cape Cod, Traditional

Plan Details

  • Charming dormers give this Cape Cod home plan an appealing facade.
  • Decorative shutters and shake siding complete the picture-perfect look.
  • Six columns are all that separate the dining room from the hall and great room so the views blend from room to room.
  • An eating bar in the kitchen is great for informal dining.
  • The main floor master suite has a wonderful bath with dual sinks, a window seat and whirlpool soaking tub.
  • Two additional bedrooms occupy the upper floor and future rec space lies over the garage, accessed by a separate staircase.

What's Included

  • Front elevation rendering
  • Foundation
  • Dimensioned floor plans
  • Electrical plans
  • Cross section through house
  • All exterior elevations
  • Selected interior elevations
  • Door and window sizes
  • Fireplace, stair, molding and cabinet details
  • Roof plan
  • Exterior details

What's Not Included

  • Architectural or Engineering Stamp - handled locally if required
  • Site Plan - handled locally when required
  • Mechanical Drawings (location of heating and air equipment and duct work) - your subcontractors handle this
  • Plumbing Drawings (drawings showing the actual plumbing pipe sizes and locations) - your subcontractors handle this
  • Energy calculations - handled locally when required

Starting at

Loading...
Price Match Guarantee
What's included?

FORMAT & LICENSE

Choose an option

$0

Not sure what to choose?

Pointer link icon

FOUNDATION

Choose an option

+$0

OPTIONS

Choose Additional Options

+$0

Loading...

Modify this Plan

Receive a free modification quote within 3 business days.

Loading...

Start with a Cost Report

Calculate the cost to build & furnish your home.

Loading...
Loading...

Square Footage Breakdown

Total Heated Area

1,866 sq. ft.

1st Floor

1,314 sq. ft.

2nd Floor

552 sq. ft.

Bonus

398 sq. ft.

Entry

48 sq. ft.

Beds/Baths

Bedrooms

3

Full bathrooms

2

Half bathrooms

1

Foundation Type

Standard Foundations

Crawl

Exterior Walls

Exterior Walls

2x4

Dimensions

Width

44' 2"

Depth

62' 0"

Max Ridge Height

27' 0"

Garage

Type

Attached

Area

1518 sq. ft.

Count

2 Cars

Entry Location

Courtyard

Ceiling Heights

First Floor

9'

Second Floor

8'

Roof Details

Framing Type

Stick

Architectural Style

Cape Cod

Plan Collections

Square Footage Breakdown

Total Heated Area

1,866 sq. ft.

1st Floor

1,314 sq. ft.

2nd Floor

552 sq. ft.

Bonus

398 sq. ft.

Entry

48 sq. ft.

Beds/Baths

Bedrooms

3

Full bathrooms

2

Half bathrooms

1

Foundation Type

Standard Foundations

Crawl

Exterior Walls

Exterior Walls

2x4

Dimensions

Width

44' 2"

Depth

62' 0"

Max Ridge Height

27' 0"

Garage

Type

Attached

Area

1518 sq. ft.

Count

2 Cars

Entry Location

Courtyard

Ceiling Heights

First Floor

9'

Second Floor

8'

Roof Details

Framing Type

Stick

Architectural Style

Plan Collections

* Please note that all sale prices and promotions featured on our website are subject to change without prior notice. While we strive to provide accurate and up-to-date information, occasional discrepancies may occur due to factors beyond our control. We encourage you to verify all details, including pricing and availability, before making any purchase. Exclusions or restrictions may apply to specific promotions. We reserve the right to modify or cancel any sale at our discretion. Thank you for your understanding and happy shopping!Let's go back to the top.