

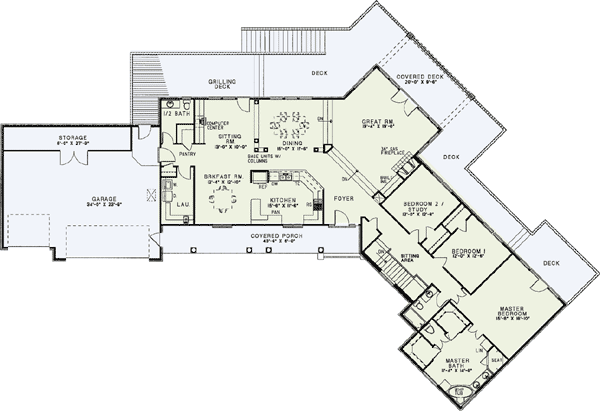
Total Heated Area
3,659 sq. ft.
Lower Level
948 sq. ft.
1st Floor
2,711 sq. ft.
Bedrooms
3 or 4
Full bathrooms
3
Half bathrooms
1
Standard Foundations
Basement, Daylight
Exterior Walls
2x4
Optional Type(s)
2x6
Width
122' 10"
Depth
75' 5"
Max Ridge Height
24' 0"
Type
Attached
Area
799 sq. ft.
Count
3 Cars
Entry Location
Front
First Floor
9'
Primary Pitch
12 on 12
Framing Type
Stick
Total Heated Area
3,659 sq. ft.
Lower Level
948 sq. ft.
1st Floor
2,711 sq. ft.
Bedrooms
3 or 4
Full bathrooms
3
Half bathrooms
1
Standard Foundations
Basement, Daylight
Exterior Walls
2x4
Optional Type(s)
2x6
Width
122' 10"
Depth
75' 5"
Max Ridge Height
24' 0"
Type
Attached
Area
799 sq. ft.
Count
3 Cars
Entry Location
Front
First Floor
9'
Primary Pitch
12 on 12
Framing Type
Stick