
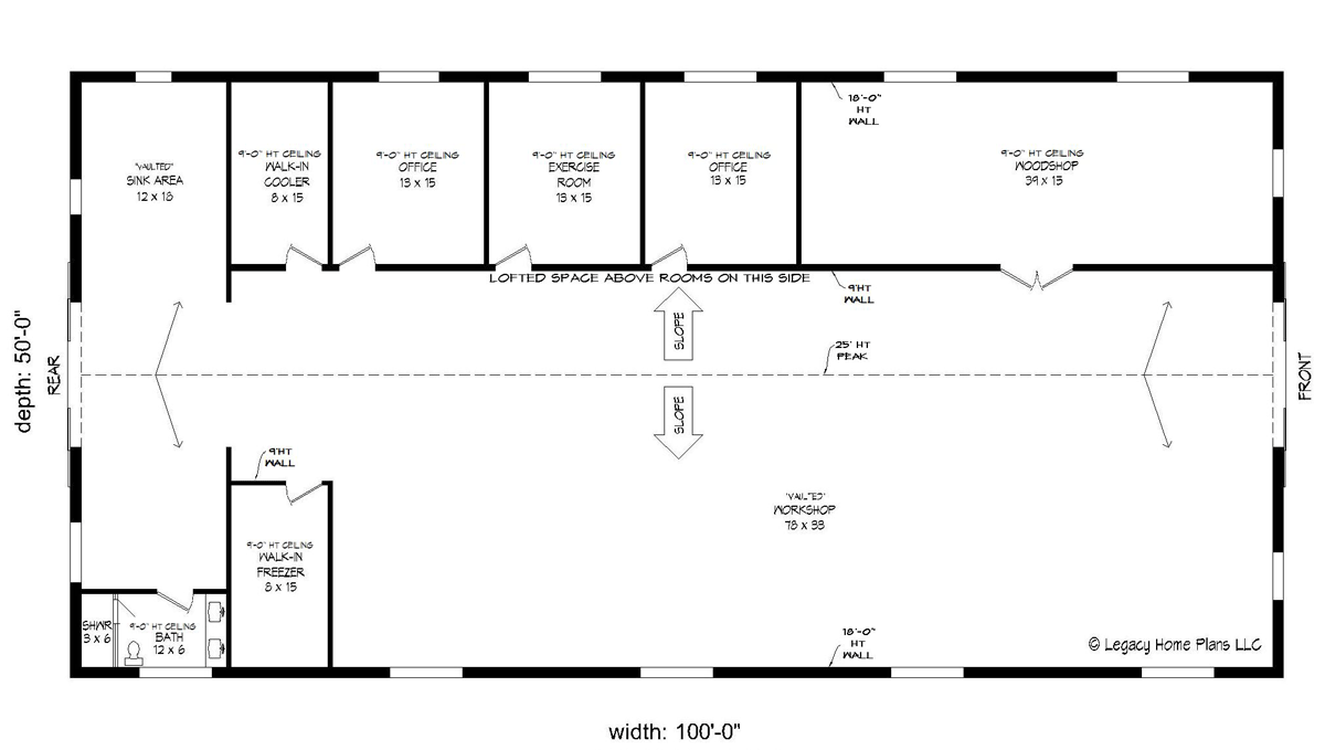
Total Heated Area
5,000 sq. ft.
1st Floor
5,000 sq. ft.
Bedrooms
0
Full bathrooms
1
Standard Foundations
Slab
Exterior Walls
Block / CMU (main floor)
Width
100' 0"
Depth
50' 0"
Max Ridge Height
28' 4"
First Floor
9'
Room
Ceiling Type
Height
Workshop
Vaulted
18' 0''
Primary Pitch
4 on 12
Framing Type
Truss
Total Heated Area
5,000 sq. ft.
1st Floor
5,000 sq. ft.
Bedrooms
0
Full bathrooms
1
Standard Foundations
Slab
Exterior Walls
Block / CMU (main floor)
Width
100' 0"
Depth
50' 0"
Max Ridge Height
28' 4"
First Floor
9'
Room
Ceiling Type
Height
Workshop
Vaulted
18' 0''
Primary Pitch
4 on 12
Framing Type
Truss