
Total Heated Area
0 sq. ft.
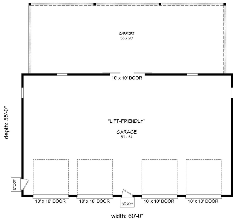
Carport
1,120 sq. ft.
Bedrooms
0
Standard Foundations
Slab
Exterior Walls
2x6
Width
60' 0"
Depth
55' 0"
Max Ridge Height
24' 5"
Type
Detached
Area
2100 sq. ft.
Count
4 Cars
Entry Location
Front
First Floor
12'
Primary Pitch
12 on 12
Framing Type
Stick
Total Heated Area
0 sq. ft.
Carport
1,120 sq. ft.
Bedrooms
0
Standard Foundations
Slab
Exterior Walls
2x6
Width
60' 0"
Depth
55' 0"
Max Ridge Height
24' 5"
Type
Detached
Area
2100 sq. ft.
Count
4 Cars
Entry Location
Front
First Floor
12'
Primary Pitch
12 on 12
Framing Type
Stick