

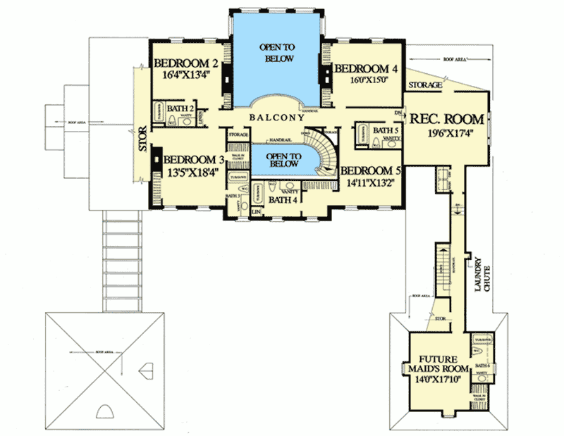
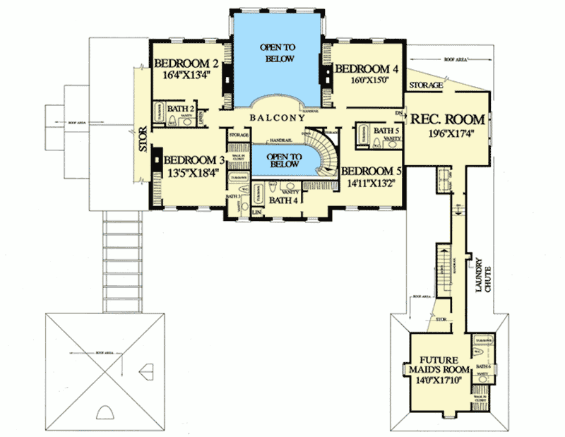
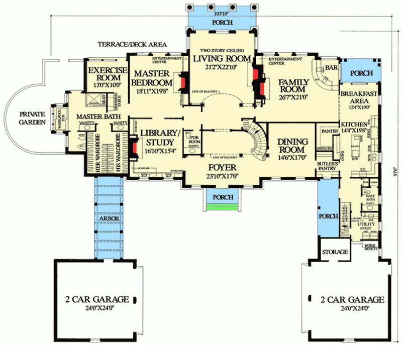
Total Heated Area
6,549 sq. ft.
1st Floor
4,172 sq. ft.
2nd Floor
2,377 sq. ft.
Bedrooms
5 or 6
Full bathrooms
5
Half bathrooms
2
Standard Foundations
Crawl
Exterior Walls
2x4
Width
105' 10"
Depth
98' 6"
Max Ridge Height
31' 0"
Type
Attached
Area
1152 sq. ft.
Count
4 Cars
Entry Location
Courtyard
First Floor
10'
Second Floor
10'
Framing Type
Stick
Total Heated Area
6,549 sq. ft.
1st Floor
4,172 sq. ft.
2nd Floor
2,377 sq. ft.
Bedrooms
5 or 6
Full bathrooms
5
Half bathrooms
2
Standard Foundations
Crawl
Exterior Walls
2x4
Width
105' 10"
Depth
98' 6"
Max Ridge Height
31' 0"
Type
Attached
Area
1152 sq. ft.
Count
4 Cars
Entry Location
Courtyard
First Floor
10'
Second Floor
10'
Framing Type
Stick