


Total Heated Area
6,762 sq. ft.
Lower Level
2,316 sq. ft.
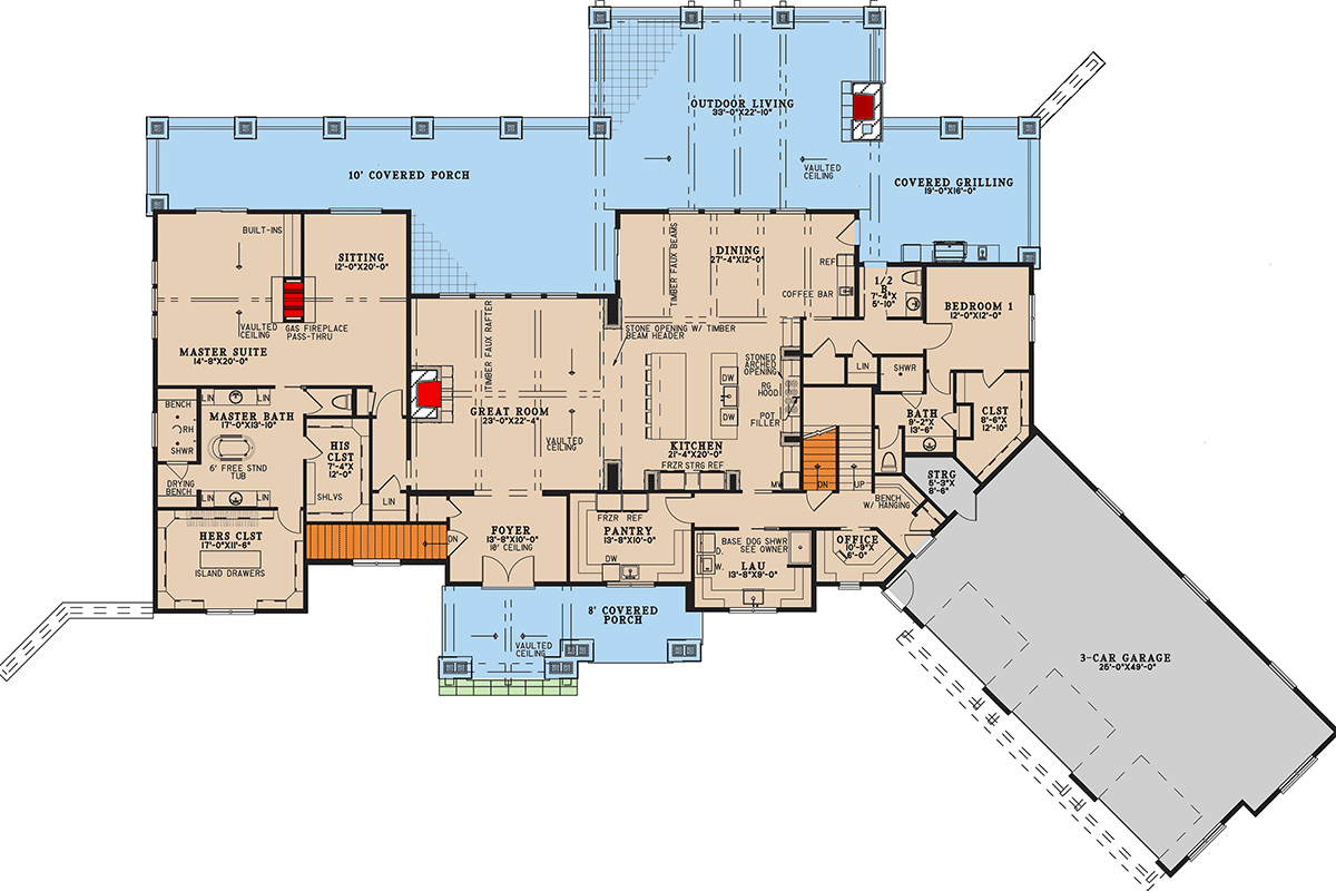
1st Floor
3,933 sq. ft.
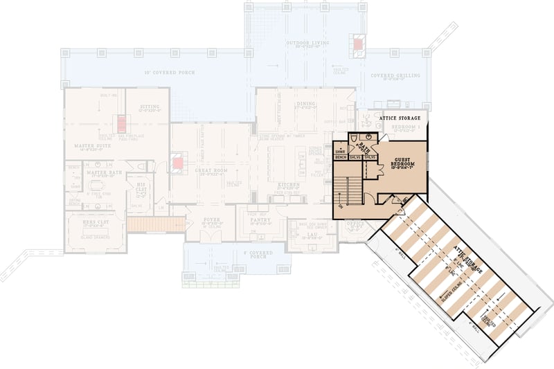
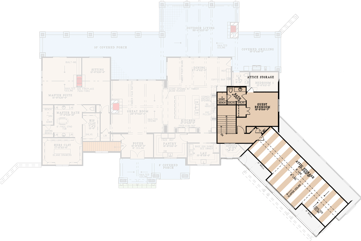
2nd Floor
513 sq. ft.
Porch, Combined
3,895 sq. ft.
Bedrooms
4
Full bathrooms
4
Half bathrooms
3
Standard Foundations
Walkout
Exterior Walls
2x4
Optional Type(s)
2x6
Width
138' 3"
Depth
100' 7"
Max Ridge Height
28' 8"
Type
Standard, Drive Under
Area
2457 sq. ft.
Count
6 Cars
Entry Location
Side, Courtyard
Lower Level
10'
First Floor
10'
Second Floor
9'
Primary Pitch
8 on 12
Secondary Pitch
8 on 12
Total Heated Area
6,762 sq. ft.
Lower Level
2,316 sq. ft.
1st Floor
3,933 sq. ft.
2nd Floor
513 sq. ft.
Porch, Combined
3,895 sq. ft.
Bedrooms
4
Full bathrooms
4
Half bathrooms
3
Standard Foundations
Walkout
Exterior Walls
2x4
Optional Type(s)
2x6
Width
138' 3"
Depth
100' 7"
Max Ridge Height
28' 8"
Type
Standard, Drive Under
Area
2457 sq. ft.
Count
6 Cars
Entry Location
Side, Courtyard
Lower Level
10'
First Floor
10'
Second Floor
9'
Primary Pitch
8 on 12
Secondary Pitch
8 on 12