

Total Heated Area
4,446 sq. ft.
1st Floor
3,086 sq. ft.
2nd Floor
1,360 sq. ft.
Porch, Front
518 sq. ft.
Bedrooms
4
Full bathrooms
3
Half bathrooms
2
Standard Foundations
Crawl, Slab
Exterior Walls
2x4
Optional Type(s)
2x6
Width
87' 0"
Depth
70' 0"
Max Ridge Height
35' 2"
Type
Attached
Area
793 sq. ft.
Count
3 Cars
Entry Location
Side
First Floor
10'
Second Floor
9'
Primary Pitch
9 on 12
Framing Type
Stick
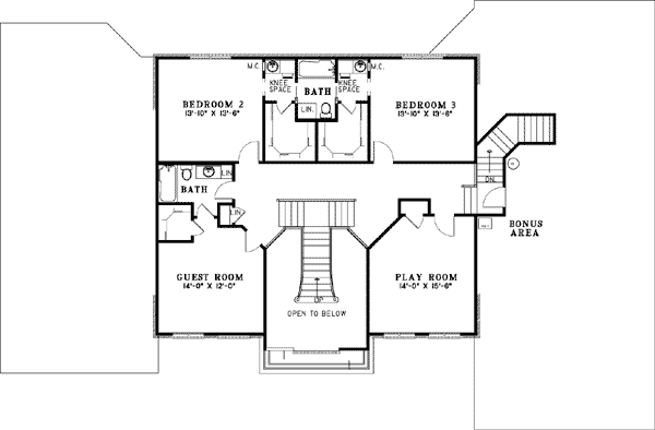
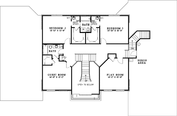
Total Heated Area
4,446 sq. ft.
1st Floor
3,086 sq. ft.
2nd Floor
1,360 sq. ft.
Porch, Front
518 sq. ft.
Bedrooms
4
Full bathrooms
3
Half bathrooms
2
Standard Foundations
Crawl, Slab
Exterior Walls
2x4
Optional Type(s)
2x6
Width
87' 0"
Depth
70' 0"
Max Ridge Height
35' 2"
Type
Attached
Area
793 sq. ft.
Count
3 Cars
Entry Location
Side
First Floor
10'
Second Floor
9'
Primary Pitch
9 on 12
Framing Type
Stick