LogoLogo TaglineLogo Tagline
Loading...
Plan 15608GE

Master-Down Classic House Plan

Heated S.F.
3,475
Beds
4 - 5
Baths
4.5 - 5.5
Stories
2
Cars
2
Client Photos

Floor Plan

Plan 15608GE

Main Level
Main Level
2nd Floor
2nd Floor
Basement
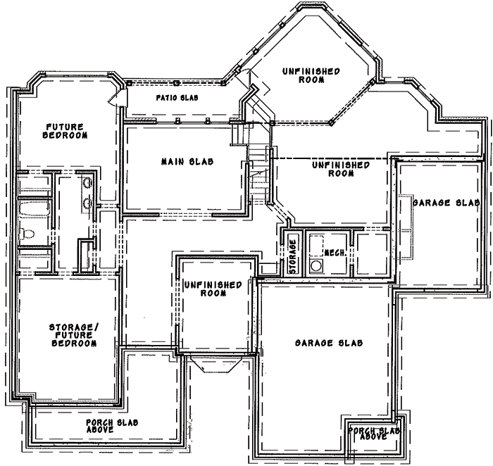
Basement

Plan 15608GE

M-F 9am-5pm EST |

1-203-761-8500

Main Level

Plan 15608GE: Master-Down Classic House Plan - Floor Plan - Main Level - European, Traditional

2nd Floor

Plan 15608GE: Master-Down Classic House Plan - Floor Plan - 2nd Floor - European, Traditional

Basement

Plan 15608GE: Master-Down Classic House Plan - Floor Plan - Basement - European, Traditional

Plan Details

  • A stunning combination of brick, stone and shingles creates a one-of-a-kind facade to this master-down house plan.
  • A dramatic 2-story foyer greets you as you step in off the covered front porch entry. A private study/living room with fireplace and built-ins and a dining room with raised ceiling flank the entry.
  • Across the gallery, you'll find the 2-story great room. Windows look out across the covered back porch which is accessible from the family room and master suite. A fireplace is flanked by built-ins.
  • The family room features a coffered ceiling and a fireplace with built-ins. It is open to the breakfast room and kitchen with large eat-at island. A walk-in pantry, laundry room and the garage are steps away. Also note the small office - a perfect place for paying bills and keeping the home organized.
  • The master suite is luxurious and occupies the left side of the home. A discreet door accesses the covered porch. The five-fixture master bath has a divided his-and-her walk-in closet.
  • The upstairs offers three bedrooms (two with walk-ins) and three baths. There is room to expand and get an optional media room by enclosing the 2-story great room (adds 265 sq. ft.) and an extra bedroom or upstairs study with bath (adds 261 sq. ft.).
Build Gallery
See and hear from existing customers with real photos, videos, and reviews.
build gallery item - House Plan 15608GE comes to life in Georgia

House Plan 15608GE comes to life in Georgia

37

Photos

What's Included

  • Exterior elevations: Included are front, rear, left and right side views of the exterior of the house. Exterior materials, construction details and measurements are also noted.
  • Foundation Plan: Includes layout of foundation support walls, plus excavated and unexcavated areas, if applicable.
  • Detailed Floor Plans: These plans show the layout of each floor of the house, including room dimensions, window and doors sizes and keys for cross section details provided later in the plans. Engineered floor joist, ceiling joist and roof plans are not included in some plans. Local engineers or manufacturing engineers are widely available to supply the services that apply to local geographic conditions.
  • Interior Details: These drawings show the specific details and design of special interior features.
  • Roof Plan: Includes the overall layout for roof construction. If trusses are used, we recommend using a local truss manufacturer to ensure compliance with local codes and regulations.
  • Cross Section Detail: Important changes in floor, ceiling and roof heights or the relationship of one level to another are called out. Exterior details such as railing and banding may also be shown.
  • Electrical: Electrical floor plan schematics for 1st and 2nd floors.
  • Plans include wall and cornice sections, general foundation sections and details. 

What's Not Included

  • Architectural or Engineering Stamp - handled locally if required
  • Framing plans
  • Site Plan - handled locally when required
  • Mechanical Drawings (location of heating and air equipment and duct work) - your subcontractors handle this
  • Plumbing Drawings (drawings showing the actual plumbing pipe sizes and locations) - your subcontractors handle this
  • Energy calculations - handled locally when required

Starting at

Loading...
Price Match Guarantee
What's included?

FORMAT & LICENSE

Choose an option

$0

Not sure what to choose?

Pointer link icon

FOUNDATION

Choose an option

+$0

OPTIONS

Choose Additional Options

+$0

Loading...

Modify this Plan

Receive a free modification quote within 3 business days.

Loading...

Start with a Cost Report

Calculate the cost to build & furnish your home.

Loading...
Loading...

Square Footage Breakdown

Total Heated Area

3,475 sq. ft.

1st Floor

2,491 sq. ft.

2nd Floor

984 sq. ft.

Bonus

207 sq. ft.

Beds/Baths

Bedrooms

4 or 5

Full bathrooms

4 or 5

Half bathrooms

1

Foundation Type

Standard Foundations

Walkout

Exterior Walls

Exterior Walls

2x4

Optional Type(s)

2x6

Dimensions

Width

70' 9"

Depth

68' 6"

Max Ridge Height

29' 5"

Garage

Type

Attached

Area

500 sq. ft.

Count

2 Cars

Entry Location

Front, Side

Roof Details

Primary Pitch

7 on 12

Square Footage Breakdown

Total Heated Area

3,475 sq. ft.

1st Floor

2,491 sq. ft.

2nd Floor

984 sq. ft.

Bonus

207 sq. ft.

Beds/Baths

Bedrooms

4 or 5

Full bathrooms

4 or 5

Half bathrooms

1

Foundation Type

Standard Foundations

Walkout

Exterior Walls

Exterior Walls

2x4

Optional Type(s)

2x6

Dimensions

Width

70' 9"

Depth

68' 6"

Max Ridge Height

29' 5"

Garage

Type

Attached

Area

500 sq. ft.

Count

2 Cars

Entry Location

Front, Side

Roof Details

Primary Pitch

7 on 12

Architectural Style

* Please note that all sale prices and promotions featured on our website are subject to change without prior notice. While we strive to provide accurate and up-to-date information, occasional discrepancies may occur due to factors beyond our control. We encourage you to verify all details, including pricing and availability, before making any purchase. Exclusions or restrictions may apply to specific promotions. We reserve the right to modify or cancel any sale at our discretion. Thank you for your understanding and happy shopping!Let's go back to the top.